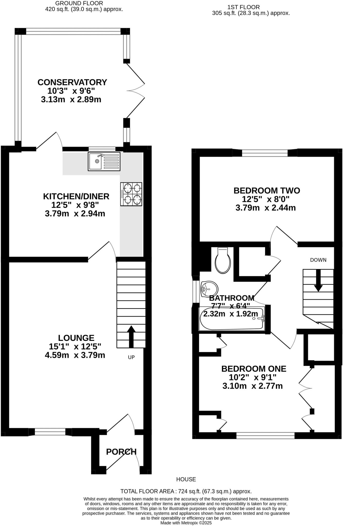
Compact, light two-bedroom semi with conservatory, driveway and easy access to Lyme Regis seafront.
Two double bedrooms with southerly aspect and partial sea glimpse
A well-presented two-bedroom semi-detached house tucked into a quiet cul-de-sac on the eastern side of Lyme Regis. Built in the 1980s and offered freehold, the home combines practical modern comforts — double glazing, gas central heating and a refitted bathroom — with a low-maintenance garden and driveway parking. The conservatory and southerly aspect from the master bedroom bring extra light and a partial sea glimpse.
At about 724 sq ft this is a compact, economical property suited to first‑time buyers, downsizers or those after a low‑maintenance second home close to the town and coast. The layout includes two reception rooms plus a conservatory, giving flexible living space for everyday use or occasional visitors. The plot is a decent size with tiered seating areas, an outside tap and a powered garden shed.
Practical details: the property is in a largely affluent area with fast broadband and excellent mobile signal, council tax band B (relatively cheap), and no recorded flood risk. Nearby schools and local amenities are within easy reach, and the Jurassic Coast and harbour are local attractions for leisure and lifestyle.
Notable points to consider: the house is modest in floor area and will suit buyers comfortable with smaller rooms. While well cared for, the property is of its era — prospective buyers should expect typical updating and decorative work rather than a full modern overhaul. Parking is on a private driveway; street parking may be limited in a cul‑de‑sac.
2 bedroom end of terrace house for sale in Applebee Way, Lyme Regis, Dorset, DT7 — £295,000 • 2 bed • 1 bath • 647 ft²
2 bedroom semi-detached house for sale in Queens Walk, Lyme Regis, Dorset, DT7 — £260,000 • 2 bed • 1 bath • 510 ft²
2 bedroom end of terrace house for sale in Acorn Close, Lyme Regis, DT7 — £260,000 • 2 bed • 1 bath • 465 ft²
2 bedroom detached house for sale in Portland Court, Lyme Regis, Dorset, DT7 — £435,000 • 2 bed • 2 bath • 1184 ft²
2 bedroom semi-detached house for sale in Henrys Way, Lyme Regis, DT7 — £150,000 • 2 bed • 1 bath • 894 ft²
2 bedroom semi-detached house for sale in 'The Cobb', Monmouth Park, Lyme Regis, DT7 — £275,000 • 2 bed • 1 bath • 545 ft²














































