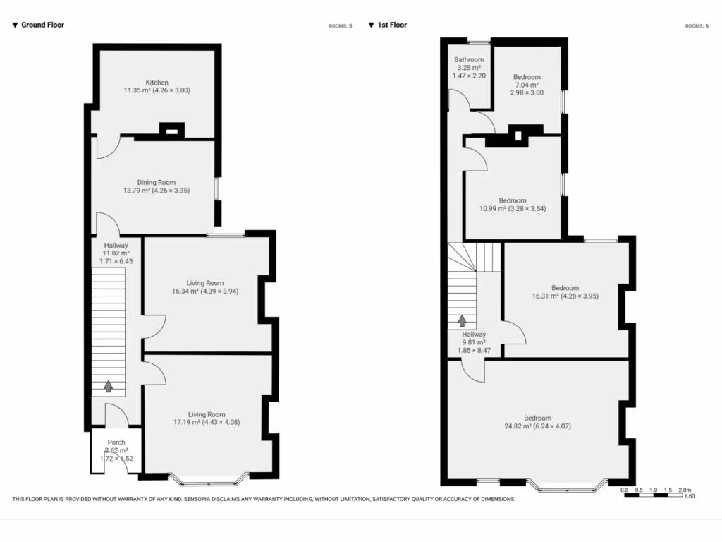
**Standout Features:**
- Spacious 4-bedroom end-terrace home with period charm.
- High ceilings, large windows, and original features enhancing spaciousness.
- Three generous reception rooms adaptable for diverse living needs.
- Neutrally designed kitchen with ample storage and potential for updates.
- Bright, large family bathroom with upgrade possibilities.
- Private outdoor space ideal for entertaining or gardening.
- On-street parking available.
**Concise Summary:**
Discover this charming 4-bedroom end-terrace home, perfect for families, first-time buyers, or savvy investors, situated in a desirable residential area. This property combines period features with modern potential, offering highlights such as spacious living areas, high ceilings, and large windows that fill the home with natural light. The flexible layout of three reception rooms allows for various uses, from a cozy family lounge to a home office.
Upstairs, four well-proportioned bedrooms and a bright family bathroom present ample room for personalization, making this property a canvas for your dream home. The low-maintenance outdoor space offers a private retreat for relaxing or entertaining guests. Located near key local amenities and within reach of good schools, this home is a great opportunity to secure a property with significant room for growth and customization. Take advantage of this unique offering and envision the endless possibilities waiting for you in this delightful Victorian gem—opportunities like this won’t last long!
4 bedroom terraced house for sale in Walton Village, Liverpool, Merseyside, L4 — £190,000 • 4 bed • 2 bath • 1522 ft²
4 bedroom terraced house for sale in Stuart Road, Walton, Liverpool, Merseyside, L4 — £140,000 • 4 bed • 1 bath • 958 ft²
4 bedroom semi-detached house for sale in Balmoral Road, Fairfield, Liverpool, Merseyside, L6 — £260,000 • 4 bed • 1 bath • 1320 ft²
4 bedroom end of terrace house for sale in Phythian Close, Liverpool, Merseyside, L6 — £210,000 • 4 bed • 2 bath • 1231 ft²
4 bedroom terraced house for sale in Arkles Lane, Liverpool, Merseyside, L4 — £220,000 • 4 bed • 1 bath
4 bedroom terraced house for sale in Stanley Road, Kirkdale, Liverpool, Merseyside, L5 — £140,000 • 4 bed • 1 bath • 1533 ft²


































































































































