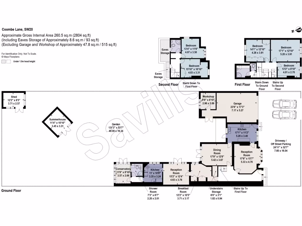
**Standout Features:**
- Spacious five-bedroom Edwardian semi-detached house
- Double garage/workshop and generous off-street parking
- Extensive garden over 130 ft long, perfect for family gatherings
- Ample scope to remodel and extend for a modern living space
- Close proximity to Raynes Park station (400m) with fast connections to London
- Desirable local schools rated Good by Ofsted
- Original architectural features with high ceilings and bay windows
**Potential Concerns:**
- EPC Rating = E, may require energy efficiency upgrades
- Some areas need modernization
- High council tax rates
Discover the essence of family living in this substantial Edwardian period property, ideally situated in the thriving community of Raynes Park. Boasting five spacious bedrooms across three floors, this home offers flexible living with four reception rooms, a conservatory, and a double garage that opens onto a vast garden. The layout encourages entertaining, with a dining room that seamlessly connects to the outdoor space—perfect for summer celebrations.
Offering significant renovation potential, this property invites buyers to envision an open-plan kitchen/dining/family area, should they seek to expand (subject to planning). With excellent transport links to central London and highly-rated local schools, this location ticks all the boxes for family-friendly living. However, be mindful of the current EPC rating and the maintenance needed in some areas. This gem in Raynes Park won’t last long—secure your dream home today and invest in your family's future!
4 bedroom semi-detached house for sale in Durham Road, West Wimbledon, SW20 — £1,600,000 • 4 bed • 1 bath • 1564 ft²
5 bedroom detached house for sale in Pepys Road, West Wimbledon, SW20 — £1,500,000 • 5 bed • 2 bath • 2761 ft²
5 bedroom semi-detached house for sale in Camberley Avenue, West Wimbledon, London, SW20 — £1,150,000 • 5 bed • 2 bath • 1523 ft²
4 bedroom semi-detached house for sale in Worple Road, London, SW20 — £1,000,000 • 4 bed • 2 bath • 1642 ft²
4 bedroom semi-detached house for sale in Camberley Avenue, Raynes Park, London, SW20 — £875,000 • 4 bed • 2 bath • 1413 ft²
4 bedroom semi-detached house for sale in Worple Road, West Wimbledon, London, SW20 — £975,000 • 4 bed • 2 bath • 1655 ft²


































































