RG7 6RE - 3 bedroom detached house for sale in Zin Zan, Upper Buckleb…

View on Property Piper

3 bedroom detached house for sale in Zin Zan, Upper Bucklebury, Reading, RG7 6RE, RG7

Summary - Zin Zan, Upper Bucklebury, Reading, RG7 6RE RG7 6RE

3 bed 1 bath Detached

**Standout Features:**
- Detached three-bedroom home with significant renovation potential
- Expansive quarter-acre plot with large rear garden, ideal for landscaping
- Secluded woodland location with access to scenic countryside walks
- Double garage and off-street parking for convenience
- Excellent school catchment, including Downs secondary school
- Chain-free and available for immediate move-in

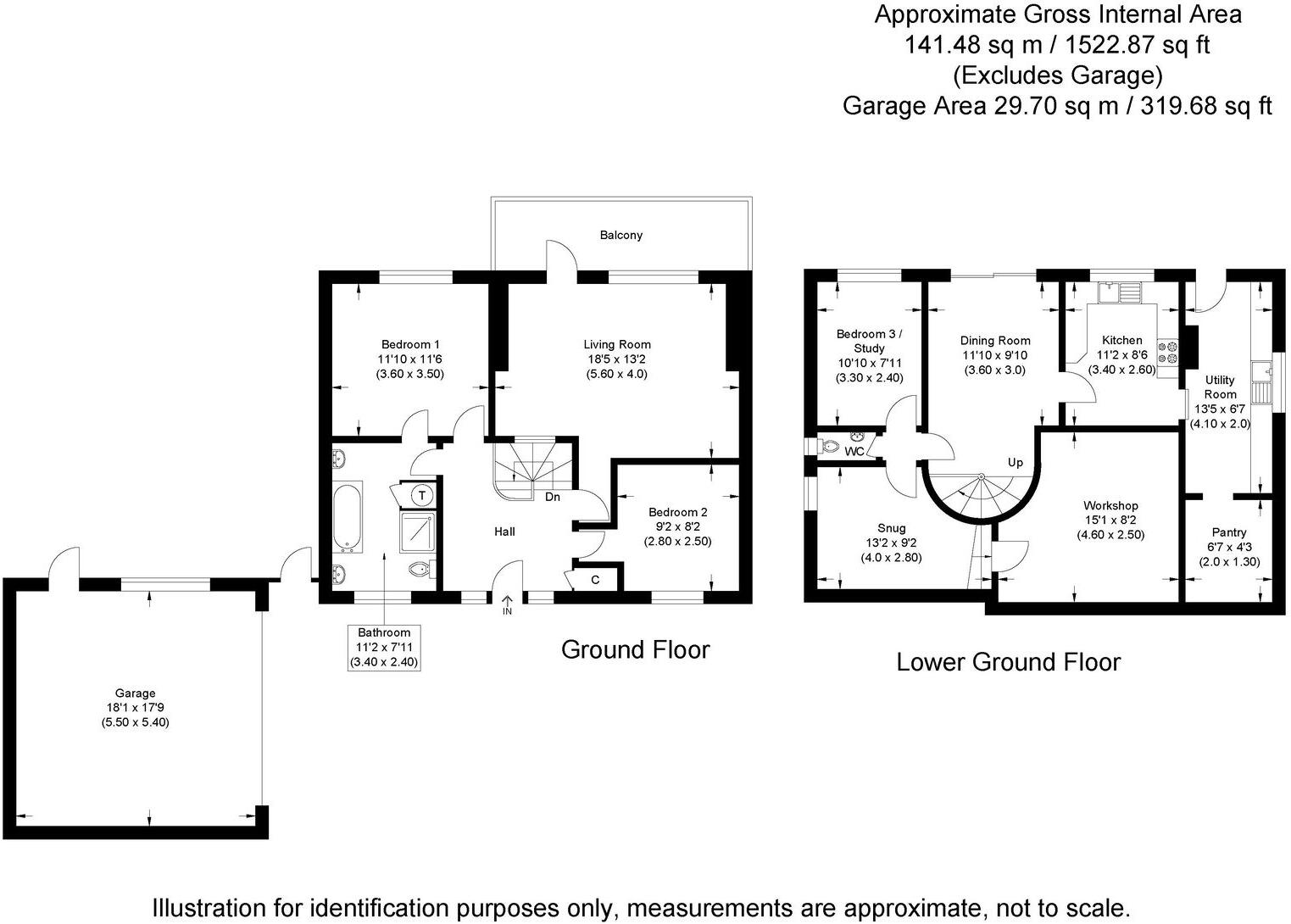
Nestled in the picturesque village of Upper Bucklebury, this spacious detached property offers an exceptional opportunity to create your dream home in an idyllic woodland setting. Boasting three bedrooms and versatile living spaces, the home is ripe for modernisation and expansion (STPP), allowing you to tailor it to meet your needs. Enjoy the serene, tranquil surroundings from your living room balcony, overlooking a large, mature garden that promises plenty of outdoor enjoyment and potential for landscaping.

With a total of 1522 square feet, this property features a practical layout, including a cozy snug, ample storage, and a workshop, adding notable functionality. Positioned within an affluently quiet community, you will find local amenities close by, including schools with good Ofsted ratings and charming village shops. Furthermore, the convenience of off-road parking and a double garage makes it perfect for families or those looking for a peaceful retreat.

This listing is ideally suited for families wanting to establish roots in a sought-after area or investors seeking a renovation project with high rental potential. Given the no onward chain and the attractive woodland location, quick viewings are highly recommended to seize this unique opportunity before it's gone.

Property Details

Image Descriptions

Rooms

Textual Property Features

Detected Visual Features

Nearby Schools

Nearest Bars And Restaurants

,,,,}

Nearest General Shops

,,}

Nearest Grocery shops

,,}

Nearest Supermarkets

,,}

Nearest Religious buildings

,,}

Nearest Medical buildings

,,,}

Nearest Leisure Facilities

,,,,}

Nearest Tourist attractions

,,}

Nearest Train stations

,,,,}

Nearest Bus stations and stops

,,,,}

Nearest Hotels

,,}

Tags

Local Market Stats

Similar Properties

Meta

High Res Images

Compatible Images

Low res Images

Thumbnails

Raw Images

High Res Floorplan Images

Compatible Floorplan Images

Low res Floorplan Images

FloorplanImages Thumbnail

Raw Floorplan Images