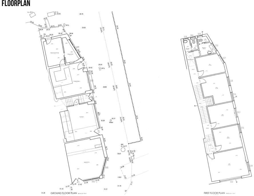
Fully let income-producing block with planning for four residential conversions..
Freehold commercial block in prime seaside Newquay location
A prominent freehold commercial block in central Newquay, currently fully let and producing £33,600 per annum. The ground-floor retail units benefit from high footfall in a prime seaside location and excellent visibility on Bank Street — attractive for investors seeking immediate rental income. Mobile signal and broadband are strong, supporting retail and holiday-let occupiers.
Planning consent has been granted to convert the upper floors into four residential units, offering clear redevelopment upside and potential to increase overall income. The property sits close to the beach with ocean views from the upper levels and easy access to local amenities popular with tourists and residents.
Buyers should note material local factors: the wider area is classified as very deprived with high recorded crime and constrained renter demographics, which can affect tenant mix and long-term rental growth. The plot is small and outdoor space limited. While the property is a steady income producer, refurbishment and management will be required to implement the residential conversion and to realise rental uplift.
Commercial property for sale in Bank Street, Newquay, TR7 — £385,000 • 1 bed • 1 bath • 728 ft²
12 bedroom block of apartments for sale in Investment Property,15 East Street, Newquay, Cornwall, TR7 1DN, TR7 — £949,950 • 12 bed • 1 bath
Commercial property for sale in Bank Street, Newquay, TR7 — £255,000 • 1 bed • 1 bath
Commercial property for sale in East Street, Newquay, Cornwall, TR7 1BE, TR7 — £375,000 • 1 bed • 1 bath • 1212 ft²
Commercial property for sale in Freehold Investment Property, Cliff Road, Newquay, Cornwall, TR7 — £995,950 • 3 bed • 1 bath
Commercial property for sale in Bank Street, Newquay, TR7 — £550,000 • 1 bed • 1 bath • 1082 ft²






























