Compact project close to town and hospital, ideal for first-time buyers or investors.
Chain-free with immediate vacant possession
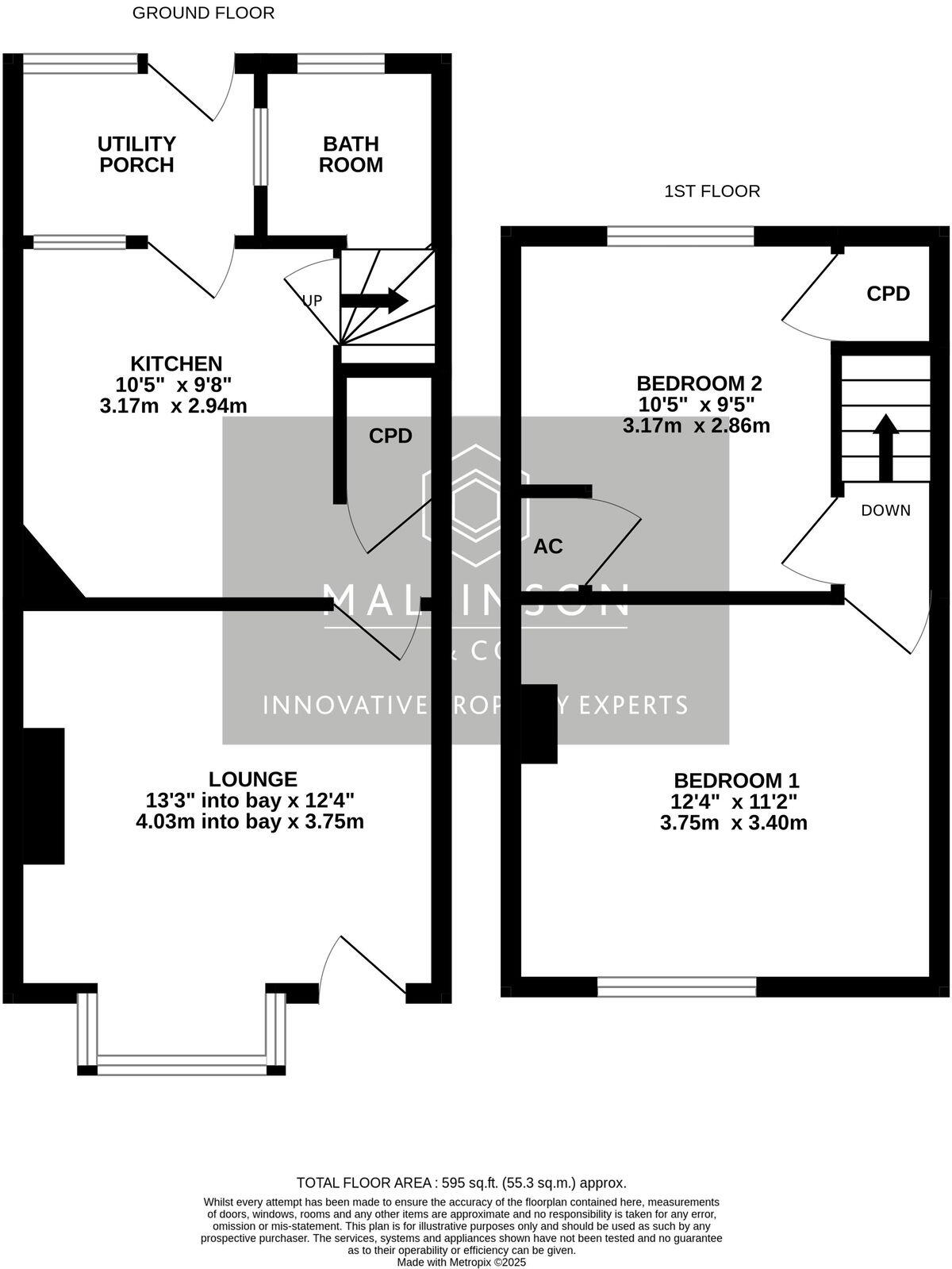
This mid-terrace Edwardian property is offered chain-free and ready for immediate vacant possession — an accessible option for first-time buyers or investors seeking value close to Barnsley town centre and the hospital. The house delivers straightforward accommodation: a bay-fronted lounge, kitchen-diner, rear porch, two double bedrooms and a compact courtyard garden. Its traditional features and bay window give character, while the layout is practical for modern living.
The home is presented in a largely dated condition and offers clear scope for refurbishment and cosmetic upgrading to add value. There are ready-made selling points — double glazing, mains gas central heating with boiler and radiators, and low council tax banding — but buyers should expect to update finishes, flooring and kitchen/bathroom fittings to suit contemporary tastes.
Practical considerations are noted: the property is compact (c.595 sq ft) with small gardens and assumed cavity wall construction without insulation, so energy improvements could be worthwhile. The local area records higher crime levels than average, which buyers should factor into their decision. Flood risk is nil and mobile/broadband connectivity is good.
Overall this is a sensible entry-level purchase or a refurbishment project for an investor: convenient location, characterful shell and immediate chain-free availability make it straightforward to view and to plan improvements.
2 bedroom terraced house for sale in Porter Terrace, Pogmoor, Barnsley, S75 — £130,000 • 2 bed • 1 bath • 625 ft²
2 bedroom terraced house for sale in Summer Lane, Barnsley, S75 — £120,000 • 2 bed • 1 bath • 657 ft²
2 bedroom terraced house for sale in Osborne Street, Barnsley, S70 1UJ, S70 — £65,000 • 2 bed • 1 bath • 480 ft²
3 bedroom terraced house for sale in Spring Street, Barnsley, S70 — £90,000 • 3 bed • 1 bath • 743 ft²
2 bedroom terraced house for sale in Wall Street, Barnsley, South Yorkshire, S70 — £110,000 • 2 bed • 1 bath • 612 ft²
2 bedroom terraced house for sale in Doncaster Road, Barnsley, S70 — £90,000 • 2 bed • 1 bath • 668 ft²






















































