**Standout Features:**
- Substantial red-brick barn and stables with conversion potential
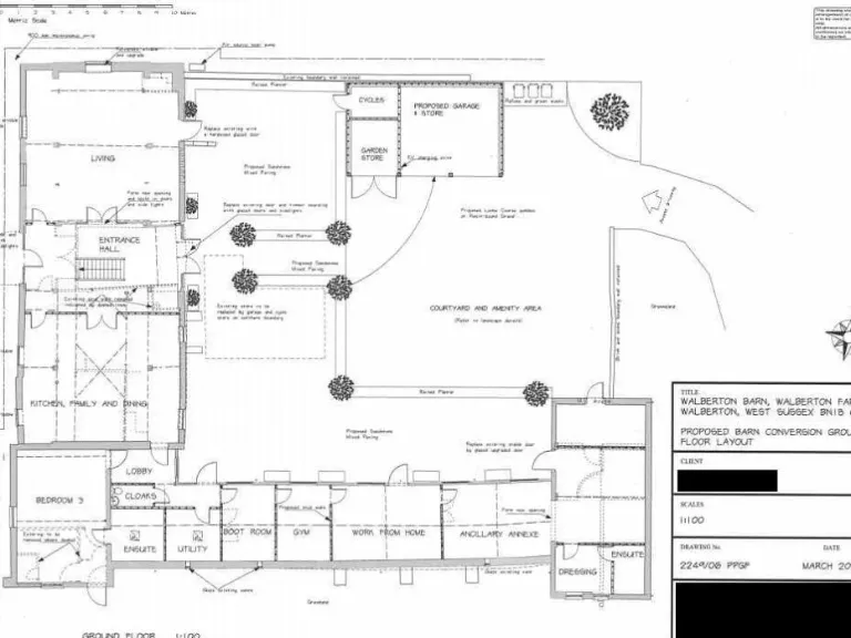
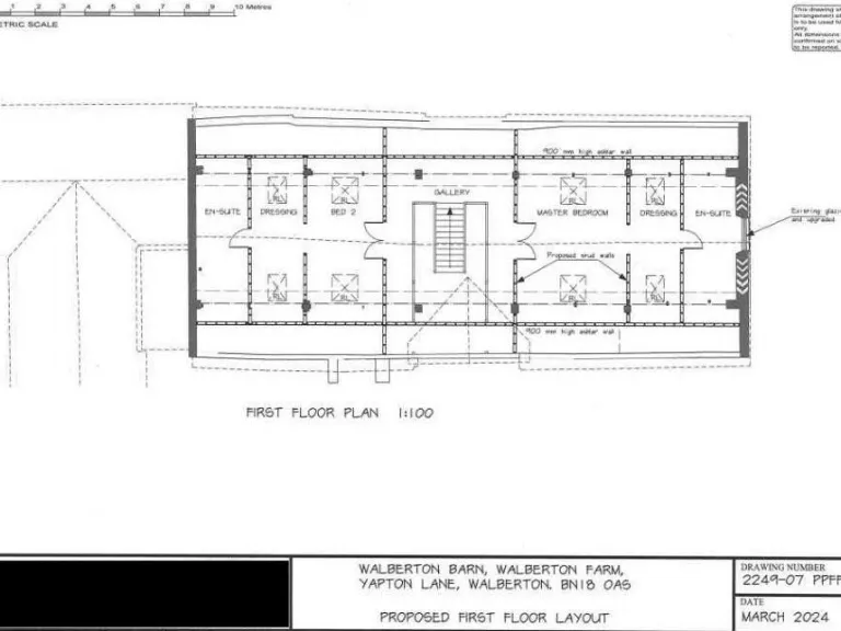
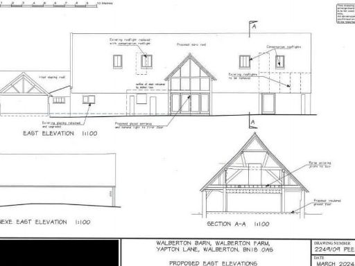
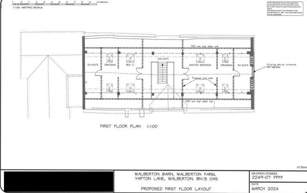
- Planning permission granted for a four-bedroom family home (Arun District Council ref. WA/95/24/PL)
- Expansive square footage of 4,504 sq ft
- Peaceful rural location just outside the sought-after village of Walberton
- Future renovation potential with expansive outdoor spaces
- The option to rent or purchase adjacent paddock land
**Potential Concerns:**
- Requires renovations to meet future living standards
- Broadband speeds are very slow; may not suit remote workers reliant on high-speed internet
Walberton Barn offers an exciting opportunity for those looking to create their dream family home in a tranquil rural setting. With existing planning permission for a spacious four-bedroom conversion that includes a self-contained annexe, this property promises a unique lifestyle surrounded by the charm of West Sussex countryside. The expansive interior layout is designed with family living in mind, featuring light-filled reception areas and generous bedrooms, making it ideal for comfortable, modern living.
Nestled amidst serene farmland yet close to the vibrant village of Walberton, this property strikes a perfect balance between rural tranquility and accessibility—enjoy local amenities like shops, pubs, and schools nearby. Additionally, the location offers easy access to larger towns like Chichester and Arundel, as well as the beautiful coastline.
Though the property currently requires renovation, its potential is immense, and the sizable garden and off-street parking provide ample scope for future development. With its unique barn character and expansive surroundings, Walberton Barn is a rare find for buyers seeking space, privacy, and the opportunity to create a bespoke home. Act quickly to seize this charming prospect before it’s gone!
4 bedroom semi-detached house for sale in Stopham Road, Pulborough, West Sussex, RH20 — £1,300,000 • 4 bed • 3 bath • 3453 ft²
2 bedroom barn conversion for sale in Warningcamp, Arundel, West Sussex, BN18 — £675,000 • 2 bed • 1 bath • 1492 ft²
3 bedroom detached house for sale in Clay Lane, Crossbush, Arundel, West Sussex, BN18 — £945,000 • 3 bed • 2 bath • 1141 ft²
4 bedroom barn conversion for sale in Drungewick Lane, Billingshurst, RH14 — £600,000 • 4 bed • 4 bath • 3627 ft²
6 bedroom barn conversion for sale in Coach Road, Shopwhyke, Chichester, West Sussex, PO20 — £1,250,000 • 6 bed • 4 bath • 4179 ft²
3 bedroom barn conversion for sale in Birdham, Chichester, West Sussex, PO20 — £1,195,000 • 3 bed • 3 bath • 650 ft²


































































