**Standout Features:**
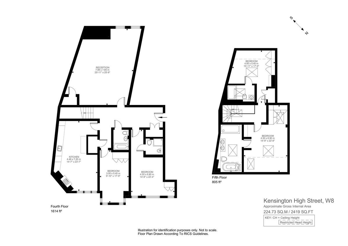
- Spacious duplex penthouse with over 2,400 sq ft of elegant living space
- Four bedrooms and four bathrooms (three en-suite) for ultimate comfort and privacy
- Well-appointed kitchen with breakfast area and modern design
- Lift access and porter services for convenience
- Prime location near Holland Park and Kensington Gardens with excellent transport links
**Concerns:**
- Service charge is high at £10,000
- Above average crime rate in the area
Elevate your lifestyle in this luxurious duplex penthouse on Kensington High Street, W8. Spanning over 2,400 square feet, this apartment boasts four generously sized bedrooms, each with access to its own stylish bathroom - three of which are en-suite, ensuring an oasis of comfort and privacy. The contemporary open-plan living room invites relaxation and entertainment, while the modern kitchen, featuring a breakfast area, is perfect for both casual meals and gatherings.
Beyond its exquisite interior, the residence is positioned in an affluent area adjacent to stunning green spaces such as Holland Park and Kensington Gardens, offering the best of city and nature living. With excellent transport links, you’re only moments away from the heart of London’s vibrant culture and amenities.
While the £10,000 service charge is substantial, the lift access and attentive porter service, combined with the luxurious features of the property, provide a lifestyle of comfort and security. Don’t overlook this rare gem in London’s property market; such opportunities are fleeting. Schedule your viewing today and imagine yourself enjoying the sophisticated living this penthouse has to offer.
4 bedroom penthouse for sale in Trinity House, Kensington High Street, London W14 — £4,850,000 • 4 bed • 3 bath • 2313 ft²
2 bedroom duplex for sale in Cope House, Cope Place, London, W8 — £4,950,000 • 2 bed • 3 bath • 2828 ft²
3 bedroom apartment for sale in Radnor Terrace, Kensington, London, W14 — £7,500,000 • 3 bed • 3 bath • 2594 ft²
3 bedroom penthouse for sale in Wolfe House, W14 — £4,800,000 • 3 bed • 3 bath • 1911 ft²
5 bedroom flat for sale in Kensington Heights , Campden Hill Road, London, W8 — £3,250,000 • 5 bed • 2 bath • 2508 ft²
2 bedroom flat for sale in Cope Place, Kensington, London, W8 — £4,950,000 • 2 bed • 2 bath • 3007 ft²


































































































