EX5 3DF - 4 bedroom detached house for sale in Westwood, Broadclyst,…

View on Property Piper

4 bedroom detached house for sale in Westwood, Broadclyst, Exeter, EX5

Summary - Lower Willyards Farm, Westwood, Broadclyst EX5 3DF

4 bed 1 bath Detached

Renovation project with 16 acres and barn conversion potential near Exeter..
Victorian 4-bedroom farmhouse requiring full renovation or modernisation
About 16.07 acres of level pasture and paddocks, further land available
Range of traditional and modern barns with Class Q potential (STP)
EPC Band F — poor energy performance and likely higher running costs
High flood risk — impacts insurance and development options
Broadband very slow; mobile signal average — rural connectivity limits
Several outbuildings have asbestos roofing and retained dairy equipment
Sold at auction; freehold title with some rights/easements attached
Lower Willyards Farm is a Victorian detached farmhouse set within about 16.07 acres of level pasture and paddocks. The house and courtyard of traditional and modern agricultural buildings offer a substantial renovation project for a smallholding, equestrian use or redevelopment subject to planning (Class Q potential for some buildings). The property will be sold at auction and is offered freehold, with further land available separately.

The farmhouse retains period character including sash windows, fireplaces and a traditional layout, but requires comprehensive renovation; services include oil-fired central heating and mains water with private drainage (type and compliance unknown). Several farm buildings are in mixed condition, some with asbestos roofing and remaining dairy equipment; purchasers should assume remedial works and lead times for any conversions.

Practical constraints are material: the EPC is Band F, broadband speeds are very slow, mobile signal is average, and the site is in a higher flood-risk area. These factors affect running costs, insurance and redevelopment options and should be fully checked before purchase. Lot 1 has direct highway access; other lots have existing agricultural access rights and some cross-field public footpaths.

This property suits buyers seeking a countryside renovation or development opportunity rather than a turnkey family home. Its sizeable landholding, proximity to Exeter and potential for converting suitable buildings create clear value for the right purchaser who can manage renovation costs, planning processes and site risks.

Property Details

Brochure Descriptions

Image Descriptions

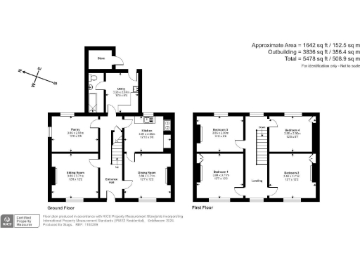
Floorplan Description

Rooms

Textual Property Features

Target Audience

AI Tags

Detected Visual Features

EPC Details

Nearby Schools

Nearest Bars And Restaurants

,,,,}

Nearest General Shops

,,}

Nearest Grocery shops

,,}

Nearest Supermarkets

,,}

Nearest Religious buildings

,,}

Nearest Medical buildings

,,,}

Nearest Airports

}

Nearest Leisure Facilities

,,,,}

Nearest Tourist attractions

,,}

Nearest Train stations

,,,,}

Nearest Bus stations and stops

,,,,}

Nearest Hotels

,,}

Tags

Local Market Stats

Similar Properties

Meta

High Res Images

Compatible Images

Low res Images

Thumbnails

Raw Images

High Res Floorplan Images

Compatible Floorplan Images

Low res Floorplan Images

FloorplanImages Thumbnail

Raw Floorplan Images