Chain-free, newly refurbished one-bed with its own garden and long lease — move in ready..
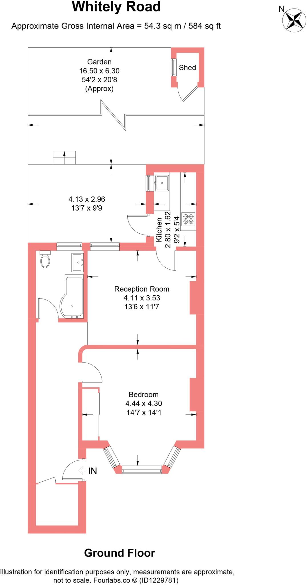
Private garden with decked patio and large lawn
Chain-free sale with share of freehold (900+ year lease)
Generous 624 sq ft one-bedroom layout, turnkey condition
Newly refurbished kitchen and quality bathroom
Private entrance; lower-ground level may reduce daylight
Close walk to Gipsy Hill station and Norwood Park
No service charge or ground rent reported
Local area has higher deprivation and average crime levels
This chain-free lower-ground garden flat pairs Victorian character with a complete recent refit, ready to move into. At approximately 624 sq ft, the one-bedroom layout is unusually generous for the area, with a large bedroom, contemporary kitchen and a quality bathroom — all refurbished to a turnkey standard.
The standout feature is the private garden with direct access: a decked patio and a wide, long lawn offer genuine outdoor space for entertaining, gardening or relaxing — rare for flats in London. The property also benefits from its own entrance, a share of freehold with over 900 years remaining, and no ongoing service charge or ground rent disclosed.
Location works well for first-time buyers seeking transport links and local amenities. Gipsy Hill station and Norwood Park are both within easy walking distance; Crystal Palace’s shops, cafés and weekend markets are close by. Fast broadband and excellent mobile signal suit home working or streaming.
Important practical notes: the flat sits on the lower-ground level, which can affect daylight compared with upper floors. The surrounding neighbourhood is described as deprived with average crime statistics; prospective buyers should visit at different times to assess local feel. Council tax is affordable, and the long lease plus share of freehold are strong tenure positives.
2 bedroom flat for sale in Whiteley Road, London, SE19 — £440,000 • 2 bed • 1 bath • 636 ft²
1 bedroom flat for sale in Harold Road, London, SE19 — £375,000 • 1 bed • 1 bath • 734 ft²
1 bedroom ground floor flat for sale in Gipsy Road, West Norwood, London, SE27 — £375,000 • 1 bed • 1 bath • 452 ft²
1 bedroom flat for sale in Freethorpe Close, SE19 — £325,000 • 1 bed • 1 bath • 454 ft²
2 bedroom flat for sale in Gipsy Hill, London, SE19 — £435,000 • 2 bed • 1 bath • 600 ft²
1 bedroom apartment for sale in Gipsy Hill, London, SE19 — £400,000 • 1 bed • 1 bath • 552 ft²














































































