Village-centre bungalow with approved plans to expand and strong parking.
Stone-built detached bungalow in village centre
A stone-built, three-bedroom detached bungalow set on a large plot in the centre of Stainland village. The ground floor is presented to a high standard with a bright open-plan dining kitchen, sizeable lounge with stove, three double bedrooms and a stylish bathroom — ready for immediate occupation. Double glazing and gas central heating provide everyday practicality.
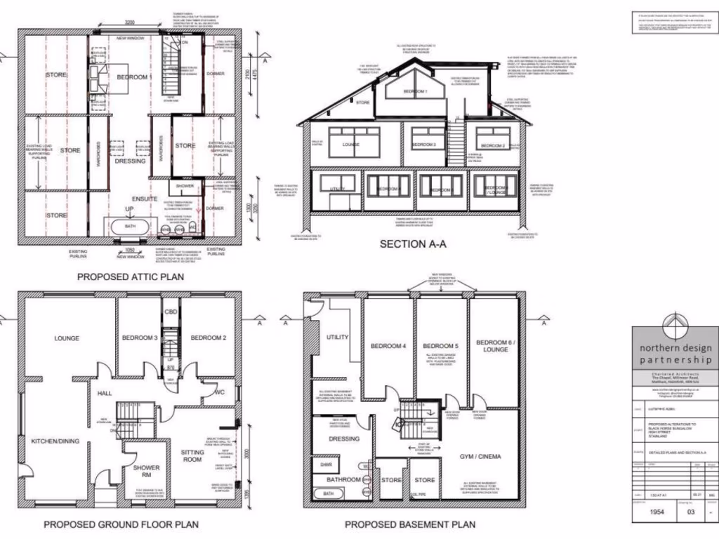
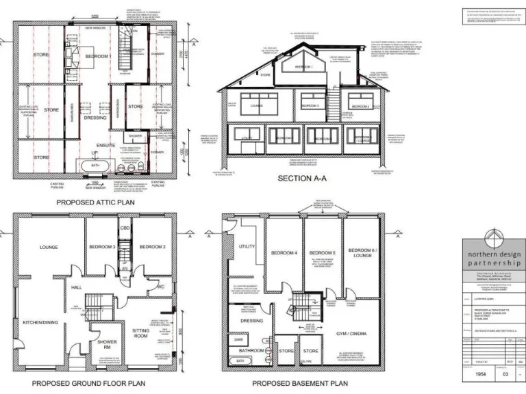
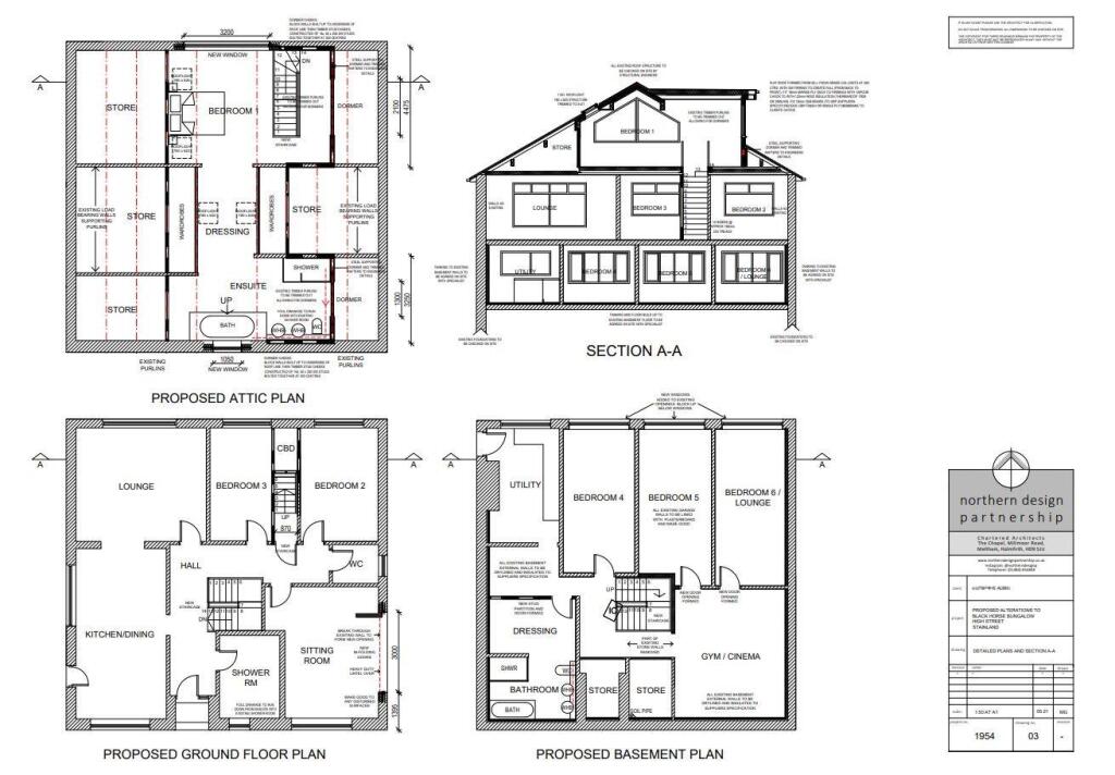
The property’s main value driver is the approved architect’s plans to extend and reconfigure the lower ground floor and potentially add a top-floor suite. Those plans could materially increase bedrooms and reception space, creating a significantly larger family home or a higher-yielding rental asset. The substantial driveway and lawned side garden add useful outdoor space and parking for several vehicles.
Notable practical points: three garages exist but currently have no vehicular access and are best used for storage unless access is reinstated. The lower ground conversion will require completion to benefit from the additional space; partial cavity insulation and unknown glazing install dates suggest some energy-improvement works may be desirable. The property is currently tenant-occupied (photos taken during tenancy), so viewings will need arranging around that tenancy.
Located in a well-regarded, low-crime village with local amenities and good primary schools nearby, this bungalow suits buyers wanting an established village address with clear scope to add value through planned enlargement. Early inspection is recommended to appreciate the existing finish and approved development potential.
2 bedroom link detached house for sale in New Street, Stainland, Halifax, HX4 — £300,000 • 2 bed • 2 bath • 806 ft²
2 bedroom semi-detached house for sale in New Street, Stainland, Halifax, HX4 — £240,000 • 2 bed • 2 bath • 1209 ft²
4 bedroom detached house for sale in New Street, Stainland , HX4 — £395,000 • 4 bed • 3 bath • 1330 ft²
4 bedroom detached house for sale in Fall Spring Green, Stainland, HX4 — £330,000 • 4 bed • 3 bath • 1131 ft²
2 bedroom detached house for sale in Stainland Road, Stainland, Halifax, HX4 — £240,000 • 2 bed • 2 bath • 1184 ft²
3 bedroom end of terrace house for sale in Dene Royd Close, Stainland, HALIFAX, HX4 — £230,000 • 3 bed • 1 bath






















































































































































