Character-filled family house with large garden and garage close to good schools.
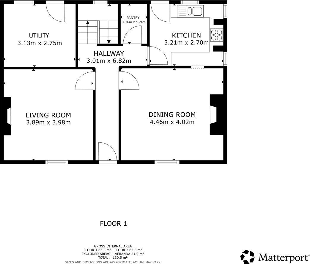
Three bedrooms and two reception rooms offering flexible family layout
Sizeable rear garden with mature planting and private outdoor space
Driveway and rear garage provide off-street parking
Multiple outbuildings including outdoor toilet for storage and utility use
Freehold, no onward chain; 3D virtual tour available
Small overall internal size (approx 702 sq ft) and single family bathroom
Solid brick Victorian build likely without wall insulation — potential upgrade needed
Local area above-average crime rate to consider
Set on Hatfield High Street, this Victorian three-bedroom semi-detached house combines period character with practical family living. Two reception rooms and a separate kitchen give flexible ground-floor space for day-to-day life, while three upstairs bedrooms and a family bathroom suit a growing household. A 3D virtual tour is available and the sale is offered with no onward chain.
Outside, a sizeable rear garden with mature planting provides private outdoor space for children and entertaining. A driveway and rear garage deliver off-street parking, and multiple outbuildings — including an outdoor toilet — offer useful storage and utility space. The property sits close to well-rated local primary and secondary schools and has good transport links and fast broadband.
Buyers should note the home is relatively small at about 702 sq ft and has a single bathroom, which may limit space for larger families. The solid brick construction (pre-1900) appears to lack wall insulation and the glazing install date is unknown, so buyers may want to budget for energy-efficiency improvements. The area records above-average crime rates, which should be considered alongside the property’s many practical advantages.
3 bedroom semi-detached house for sale in Thompson Nook, Hatfield, Doncaster, South Yorkshire, DN7 — £190,000 • 3 bed • 1 bath • 765 ft²
2 bedroom end of terrace house for sale in High Street, Hatfield, Doncaster, DN7 — £125,000 • 2 bed • 1 bath • 999 ft²
3 bedroom semi-detached house for sale in Hund Oak Drive, Hatfield, Doncaster, DN7 — £170,000 • 3 bed • 1 bath • 711 ft²
4 bedroom detached house for sale in High Street, Hatfield, Doncaster, DN7 — £525,000 • 4 bed • 2 bath • 2153 ft²
3 bedroom semi-detached house for sale in 1 Thompson Nook, Hatfield, Doncaster, South Yorkshire, DN7 6JS, DN7 — £190,000 • 3 bed • 1 bath • 764 ft²
3 bedroom semi-detached house for sale in Mews Court, Dunscroft, Doncaster, South Yorkshire, DN7 — £150,000 • 3 bed • 1 bath • 904 ft²










































































































