Spacious rural family house with large garden and flexible living spaces.
Approximately 0.28 acre secluded plot, south-facing rear garden
Former 1934 doctor's house with working original bell system
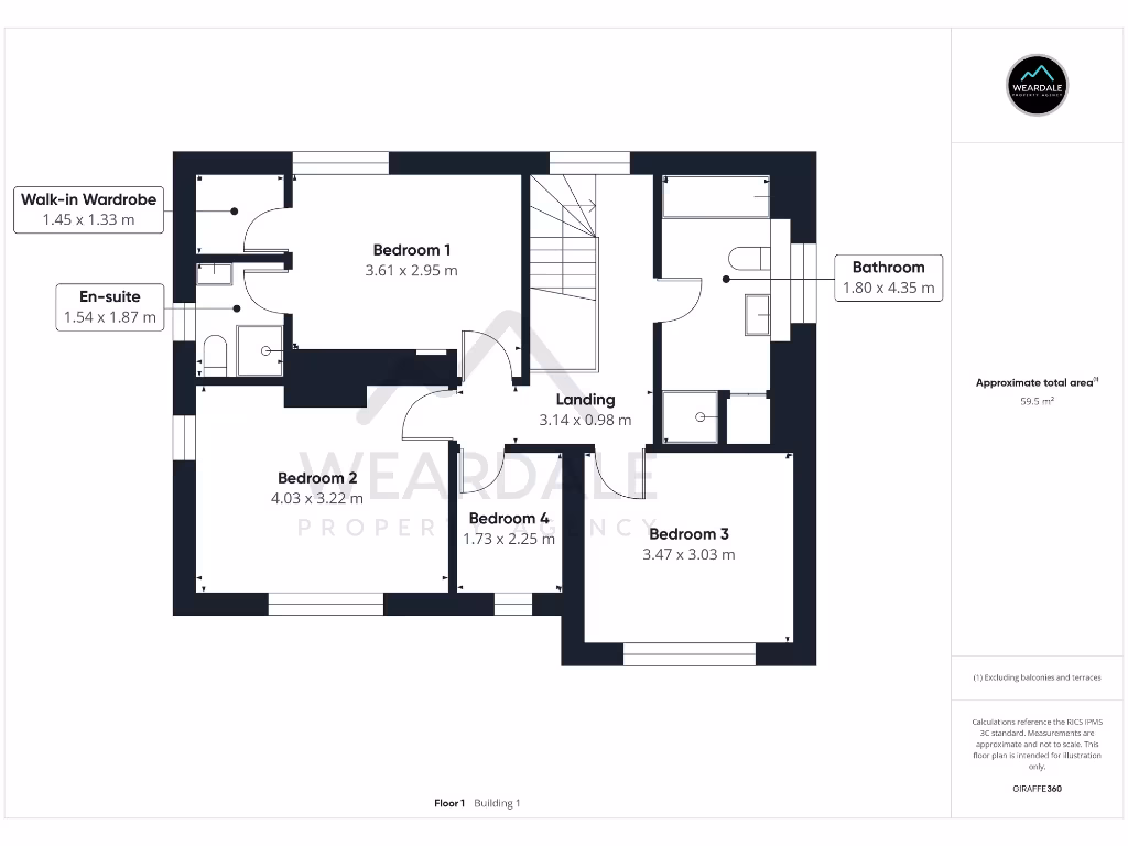
Four bedrooms, three bathrooms; option to convert to five bedrooms
Extensively updated: new boiler, windows, kitchen, bathrooms, conservatory
Garage, workshop and driveway parking for multiple vehicles
Main fuel recorded as coal; walls likely uninsulated sandstone/limestone
Medium flood risk for area; EPC rating E — potential for efficiency upgrades
Some external areas overgrown; garden and maintenance work advised
Set on approximately 0.28 acres in a quiet hamlet, this former 1934 doctor’s house blends period character with practical living for a growing family. The current owners have completed extensive works — new boiler, replacement windows, refitted bathrooms and kitchen, a modern conservatory, and upgraded services — while original features such as the working bell system remain as a nod to the property’s history. The layout offers flexible living with two reception rooms, a ground-floor office/craft room and the option to create a fifth bedroom if required.
The large, south-facing rear garden and deck create a private outdoor hub for family life, with mature boundary trees, greenhouse, garage and workshop adding practical value. Driveway parking for multiple vehicles and easy internal flow from the conservatory into garden areas suit gatherings and everyday family routines. Nearby Wearhead Primary School (Good Ofsted) and the surrounding countryside setting will particularly appeal to buyers seeking space and seclusion.
Buyers should note a few practical considerations: the property’s main fuel is recorded as coal and the walls are likely original sandstone/limestone without modern cavity insulation, which contributes to the EPC rating of E. There is a medium flood risk for the area and some external areas and lawns show overgrowth and will require routine maintenance. The home has been updated substantially but still offers scope for targeted improvement and energy-efficiency upgrades.
In short, this detached family home offers substantial land, characterful detail and ready-to-enjoy living, with clear potential to enhance thermal performance and personalise finishes. It’s a strong option for families wanting space, privacy and a rural lifestyle within reach of Bishop Auckland.
4 bedroom farm house for sale in Rookhope, Weardale, DL13 — £875,000 • 4 bed • 2 bath • 2034 ft²
3 bedroom detached house for sale in School Close, St. Johns Chapel, DL13 — £430,000 • 3 bed • 3 bath • 1851 ft²
4 bedroom semi-detached house for sale in Delves Lane, Consett, County Durham, DH8 — £400,000 • 4 bed • 3 bath • 1492 ft²
3 bedroom detached house for sale in Wearhead, Bishop Auckland, DL13 — £360,000 • 3 bed • 1 bath • 1326 ft²
5 bedroom cottage for sale in Lanehead, Bishop Auckland, DL13 — £460,000 • 5 bed • 4 bath • 1967 ft²
5 bedroom detached house for sale in School House, The Edge, Woodland, DL13 — £465,000 • 5 bed • 3 bath • 3197 ft²


















































































































































































































































































