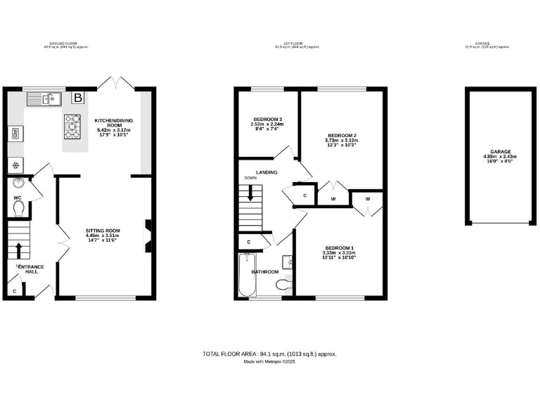
**Standout Features:**
- **Modern Cloakroom:** Convenient for guests.
- **Spacious Living Areas:** Open plan kitchen/dining room with built-in appliances.
- **Three Bedrooms:** Two with built-in wardrobes.
- **Low Maintenance Garden:** Enclosed rear with easy upkeep.
- **Single Garage:** Located in a nearby block.
- **Ideal Location:** Minutes from shops and Lymington High Street.
- **Family-Friendly & Investment Potential:** Perfect for first-time buyers or families.
This beautifully presented three-bedroom end-of-terrace house in the desirable Grafton Gardens boasts modern charm and functionality throughout. The bright and spacious open plan kitchen/dining room is ideal for entertaining and seamlessly connects to a low-maintenance paved garden, offering a private outdoor retreat. The inviting sitting room features a bay window and a cozy fireplace, creating a warm atmosphere for family gatherings.
Conveniently located just a short walk from local shops and the vibrant Lymington High Street, this home is perfectly situated for easy access to all amenities. The property retains its original character with modern upgrades, making it an excellent choice for first-time buyers or those looking to invest in a low-maintenance family home.
While the overall condition is immaculate, buyers should note that the single garage is located nearby, offering secure storage or parking. With the New Forest and delightful beaches just a drive away, this home offers a perfect blend of comfort, accessibility, and potential. Don’t miss out on this opportunity!
3 bedroom end of terrace house for sale in Grafton Gardens, Pennington, Lymington, Hampshire, SO41 — £495,000 • 3 bed • 1 bath • 1200 ft²
4 bedroom end of terrace house for sale in Kingston Park, Pennington, Lymington, SO41 — £499,950 • 4 bed • 2 bath • 1362 ft²
3 bedroom end of terrace house for sale in St Thomas Park, Lymington, Hampshire, SO41 — £475,000 • 3 bed • 2 bath • 1088 ft²
3 bedroom end of terrace house for sale in Hollywood Lane, Lymington, Hampshire, SO41 — £445,000 • 3 bed • 2 bath • 1406 ft²
3 bedroom end of terrace house for sale in Grafton Gardens, Pennington, Lymington, Hampshire, SO41 — £365,000 • 3 bed • 1 bath • 892 ft²
3 bedroom house for sale in Leigh Park, Lymington, SO41 — £429,950 • 3 bed • 1 bath • 800 ft²






































































