Modern, low-maintenance family home with large plot and energy-efficient features.
- New-build four-bedroom detached with 10-year NHBC warranty
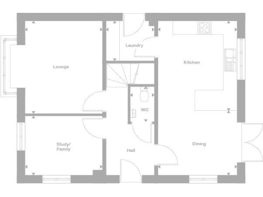
- Open-plan kitchen/family room with French doors to garden
- Feature bay window in lounge and separate study
- Separate laundry room and downstairs WC for practical family use
- Principal bedroom benefits from an en-suite plus family four-piece bathroom
- Compact internal size (approx. 989 sq ft) despite very large plot
- Single garage parking; annual service charge £123.27 and £500 reservation fee
- Online pre-reservation and optional paid upgrades available
A contemporary four-bedroom detached new build arranged over two floors, this home focuses on practical family living with modern fixtures and an included 10-year NHBC warranty. The ground floor centres on an open-plan kitchen/dining/family area with French doors leading to the garden, a separate lounge with a feature bay window and a dedicated study. Accommodation also includes a separate laundry room, downstairs WC and a principal bedroom with en‑suite.
Internally the property is relatively compact at about 989 sq ft, so it suits families who prioritise well-planned space over very large rooms. The plot is described as very large, offering outdoor potential, and the house benefits from energy-efficient features such as solar panels and new-build specification that should reduce running costs compared with older stock.
Practical points to note: parking is a single garage and the development charges an annual service charge of £123.27. A reservation fee of £500 applies and selected optional upgrades are available at extra cost. Council tax band is still to be confirmed. Online pre-reservation is offered for convenience.
This home is best for families wanting a modern, low-maintenance property in a well-served Wakefield neighbourhood, with the reassurance of new-build warranties and energy-efficient finishes. Buyers needing very large internal floor area should be aware of the compact overall size before viewing.
5 bedroom detached house for sale in Off Neil Fox Way, Wakefield,
WF3 4GP, WF3 — £499,995 • 5 bed • 1 bath • 893 ft²
4 bedroom detached house for sale in Nellie Spindler Drive, Wakefield,
WF3 4LS, WF3 — £414,995 • 4 bed • 1 bath • 841 ft²
4 bedroom detached house for sale in Nellie Spindler Drive, Wakefield,
WF3 4LS, WF3 — £386,995 • 4 bed • 1 bath • 816 ft²
4 bedroom detached house for sale in Nellie Spindler Drive, Wakefield,
WF3 4LS, WF3 — £414,995 • 4 bed • 1 bath • 927 ft²
3 bedroom mews property for sale in Nellie Spindler Drive, Wakefield,
WF3 4LS, WF3 — £269,995 • 3 bed • 1 bath • 596 ft²
3 bedroom semi-detached house for sale in Nellie Spindler Drive, Wakefield,
WF3 4LS, WF3 — £272,995 • 3 bed • 1 bath • 596 ft²














































