Affordable brand-new shared ownership in a quiet village, with garden and parking.
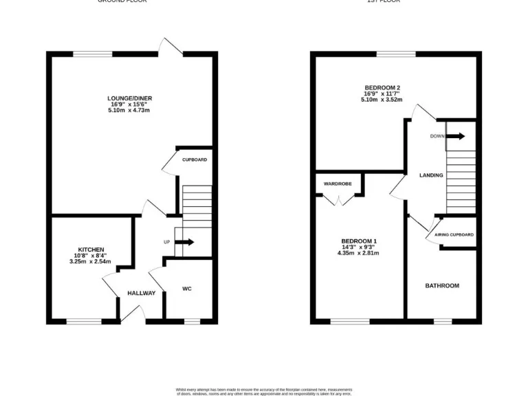
Brand-new two-bedroom semi-detached, approx 859 sq ft
A compact, brand-new two-bedroom semi-detached home offered via Shared Ownership, ideal for first-time buyers seeking an affordable step onto the property ladder. The open-plan living area, separate kitchen, two double bedrooms and enclosed rear garden deliver practical family-friendly space across approximately 859 sq ft. Off-street parking and a low-crime village location add everyday convenience.
Properties at Fallows Watch benefit from a rural setting close to Great Dunmow and Bishop’s Stortford, with good road links to Stansted Airport, the M11 and Elsenham station (around an hour to London Liverpool Street). Local schools are rated Good and the area supports countryside leisure activities and village amenities.
Affordability is the main draw: a 35% share is priced at £132,125 (example rent £562.32pcm) with a minimum 5% deposit on the share (approx. £6,607). Estimated service charges are about £72.41pcm and rents/service charges are reviewed annually, so budget for future increases.
Important practical points: this is a leasehold Shared Ownership home with 990 years remaining. Shared Ownership has eligibility conditions and restrictions (minimum and maximum initial share rules, rent payable on the unsold equity). Council tax band is not yet confirmed. The property is new build so final finishes and layouts may vary from marketing images.
2 bedroom terraced house for sale in Greville Close, Little Easton, Dunmow, CM6 — £130,375 • 2 bed • 1 bath • 859 ft²
2 bedroom semi-detached house for sale in Greville Close, Little Easton, Dunmow, CM6 — £226,500 • 2 bed • 1 bath • 859 ft²
2 bedroom terraced house for sale in Greville Close, Little Easton, Dunmow, CM6 — £167,625 • 2 bed • 1 bath • 859 ft²
3 bedroom end of terrace house for sale in Greville Close, Little Easton, Dunmow, CM6 — £256,500 • 3 bed • 1 bath • 1009 ft²
3 bedroom end of terrace house for sale in Greville Close, Little Easton, Dunmow, CM6 — £149,625 • 3 bed • 1 bath • 1009 ft²
2 bedroom bungalow for sale in Greville Close, Little Easton, Dunmow, CM6 — £152,000 • 2 bed • 1 bath • 788 ft²






















































