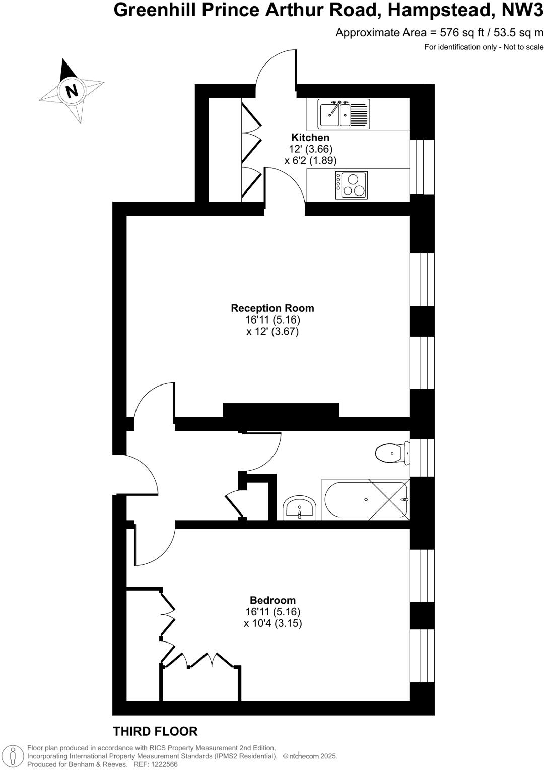
### Standout Features:
- **Spacious & Bright**: Generous 16'11 ft reception room and double bedroom with fitted wardrobes.
- **Modern Amenities**: Luxury bathroom and fully fitted modern kitchen.
- **Desirable Location**: Located in the heart of Hampstead Village, close to parks and underground station.
- **Communal Gardens & Lift Access**: Attractive landscaped gardens and smooth access to the third floor.
- **Parking Available**: Off-street parking on a first-come, first-served basis.
### Summary Description:
Discover this beautifully presented one-bedroom apartment nestled in a classic Georgian Revival mansion block along the prestigious Prince Arthur Road in Hampstead. The third-floor unit boasts a spacious 16'11 ft reception room and a 16 ft double bedroom, both flooded with natural light from large windows, creating an inviting atmosphere. The residence is in excellent condition and features a luxury bathroom and a fully equipped, modern kitchen—perfect for a comfortable urban lifestyle.
Situated in a highly sought-after area, you'll enjoy the convenience of Hampstead Village's vibrant amenities, including top-tier cafes, boutiques, and the remarkable green spaces of Hampstead Heath. As a share of the freehold, this property offers a sound investment opportunity, ideal for first-time buyers or professionals looking for a blend of exclusivity and comfort. Carefree living is further enhanced by included central heating and hot water in the service charge, though it's worth noting the first-come, first-served nature of the off-street parking. This apartment is an excellent chance to secure a slice of Hampstead charm—schedule your viewing today while it lasts!
1 bedroom apartment for sale in Prince Arthur Road, Hampstead Village, NW3 — £650,000 • 1 bed • 1 bath • 646 ft²
1 bedroom flat for sale in Greenhill Prince Arthur Road Hampstead Village NW3 — £699,950 • 1 bed • 1 bath • 601 ft²
1 bedroom apartment for sale in Village Mount, Hampstead, London, NW3 — £425,000 • 1 bed • 1 bath • 338 ft²
2 bedroom apartment for sale in Heathway Court, Finchley Road, Hampstead, NW3 — £450,000 • 2 bed • 1 bath • 703 ft²
3 bedroom apartment for sale in Holford Road, Hampstead Village, NW3 — £1,395,000 • 3 bed • 2 bath • 1189 ft²
2 bedroom apartment for sale in Giles Building, Upper Hampstead Walk, NW3 — £1,250,000 • 2 bed • 2 bath • 965 ft²






























































































