CM16 7AD - 4 bedroom detached house for sale in Bower Hill, Epping, Es…

View on Property Piper

4 bedroom detached house for sale in Bower Hill, Epping, Essex, CM16

Summary - 11 BOWER HILL EPPING CM16 7AD

4 bed 6 bath Detached

Four-bed detached family home with smart systems, station access and large garden.
Close walk to Epping station and commuter links
Electric gated drive, ample off-street parking, double-length garage
Large open-plan kitchen/family room opening to patio and garden
Home automation for lighting and heating throughout
Air-source heat pump with underfloor heating on ground floor
Rear garden irrigation system and large patio for entertaining
Main fuel: electricity (tariff unspecified) — consider running costs
Local area records higher crime; council tax noted as expensive
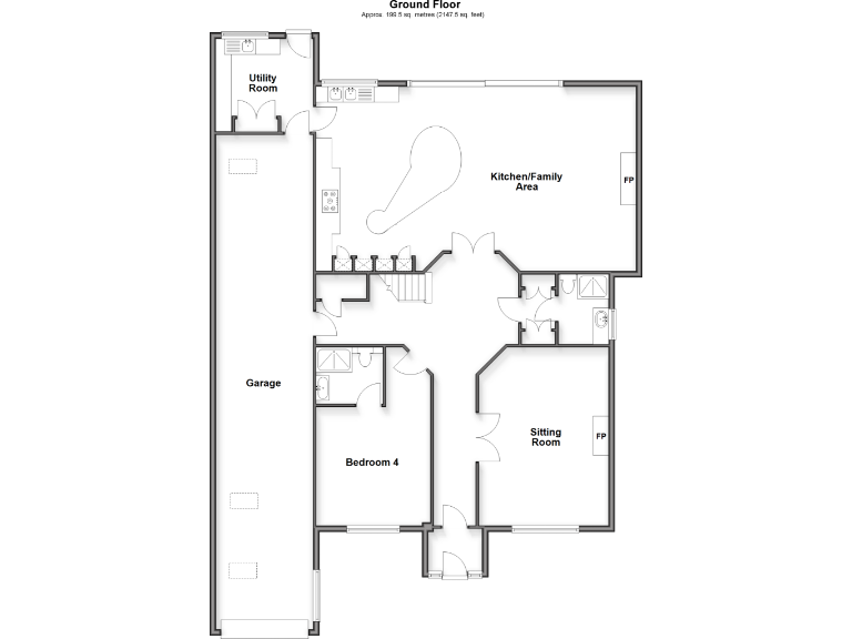
Set on a large plot in Bower Hill, this roomy four-bedroom detached house is arranged around a generous open-plan kitchen/family area that opens onto a landscaped rear garden with irrigation and a large patio — ideal for family meals and entertaining. The property benefits from electric gated off-street parking and a double-length garage, plus easy walking distance to Epping station for quick commuter access.

The home is specified for modern living: underfloor heating on the ground floor fed by an air-source heat pump, comprehensive home automation controlling lighting and heating, and a contemporary kitchen with integrated appliances. Principal bedroom includes an en-suite, dressing area and a large footprint; three further bedrooms also have en-suites, giving flexible space for family and guests.

Practical considerations are straightforward: the house runs primarily on electricity (tariff unspecified), council tax is described as expensive, and the wider area records higher-than-average crime — buyers should factor security and running costs into their decision. All measurements, services and legal details require verification by your solicitor.

This property will suit families seeking modern convenience close to good local schools and strong transport links, as well as buyers looking for a low-maintenance garden and turnkey smart-home features. While offering clear lifestyle and commuting benefits, the home’s operational costs and local crime profile are material points to review before purchase.

Property Details

Image Descriptions

Floorplan Description

Rooms

Textual Property Features

Target Audience

AI Tags

Detected Visual Features

EPC Details

Nearby Schools

Nearest Bars And Restaurants

,,,,}

Nearest General Shops

,,}

Nearest Grocery shops

,,}

Nearest Supermarkets

,,}

Nearest Religious buildings

,,}

Nearest Medical buildings

,,,}

Nearest Airports

,,}

Nearest Leisure Facilities

,,,,}

Nearest Tourist attractions

,,}

Nearest Train stations

,,,,}

Nearest Bus stations and stops

,,,,}

Nearest Hotels

,,}

Tags

Local Market Stats

Similar Properties

Meta

High Res Images

Compatible Images

Low res Images

Thumbnails

Raw Images

High Res Floorplan Images

Compatible Floorplan Images

Low res Floorplan Images

FloorplanImages Thumbnail

Raw Floorplan Images