Detached annexe and huge landscaped garden in a private gated development.
Handbuilt English oak frame and vaulted, beam-lined principal living space
Tucked behind private electric gates, this handbuilt oak-framed barn offers 1,856 sq ft of newly finished living across a peaceful CM1 countryside setting. The open-plan ground floor, vaulted ceilings and exposed beams create a dramatic principal living space that flows through full-height bifold doors onto a professionally landscaped wraparound garden and full-length patio.
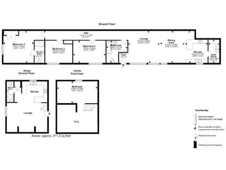
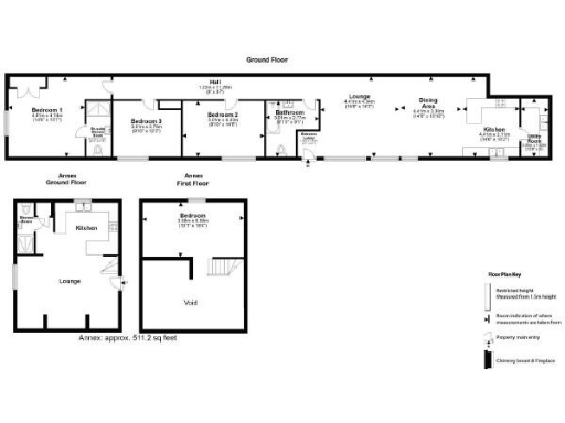
The property includes a standalone, two-storey historic annexe (the original forge) converted as a self-contained one-bedroom unit — ideal for multigenerational living, a home office or rental income. The main house features a bespoke Thomas Hammond kitchen with quartz worktops and integrated appliances, plus traditional oak-framed garage and a flexible outbuilding suitable for a gym, studio or storage.
Practical, future-ready details include high-spec security, smart-home wiring and an EV charging point. Residents benefit from a private gated development of just eight homes, shared landscaped amenity meadow and straightforward access to Chelmsford city centre (approx. 10-minute drive) and premier Essex schools, including top-rated county high schools.
A newly completed build, the home is largely maintenance-free now but some specification details such as council tax banding are not provided. Mobile signal is average locally. Overall this is a character-rich, contemporary barn conversion offering generous outdoor space and flexible living for families seeking countryside calm with commuter convenience.
5 bedroom semi-detached house for sale in Kilnfield Barns, Chignal Road, Chignal Smealey, Chelmsford, CM1 — £1,750,000 • 5 bed • 4 bath • 3369 ft²
4 bedroom house for sale in Kilnfield Barns, Chignal Road, Chelmsford, Essex, CM1 — £1,750,000 • 4 bed • 4 bath • 3369 ft²
4 bedroom barn conversion for sale in Kilnfield Barns, Chignal Road, Chelmsford, Essex, CM1 — £1,450,000 • 4 bed • 3 bath • 1991 ft²
4 bedroom detached house for sale in Kilnfield Barns, Chignal Road, Chignal Smealey, Chelmsford, CM1 — £1,150,000 • 4 bed • 3 bath • 1868 ft²
4 bedroom semi-detached house for sale in Kilnfield Barns, Chignal Road, CM1 — £1,250,000 • 4 bed • 4 bath • 2300 ft²
4 bedroom detached house for sale in Kilnfield Barns, Woodhall Hill, Chignal Smealy, Chelmsford, Essex, CM1 — £1,450,000 • 4 bed • 2 bath • 1991 ft²






























































