**Standout Features:**
- Four-bedroom, two-bathroom townhouse
- No onward chain—ready to move in
- Private garden and off-street parking
- Short stroll to Norbiton station
- Proximity to Richmond Park and outstanding schools
- Requires modernization, providing renovation potential
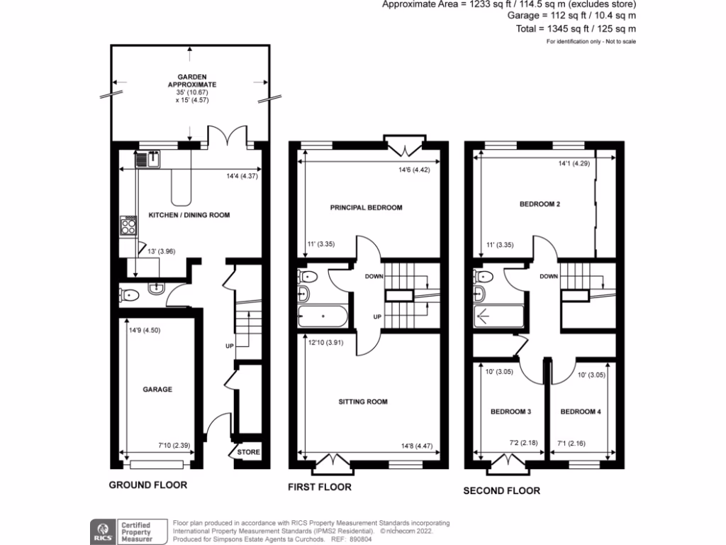
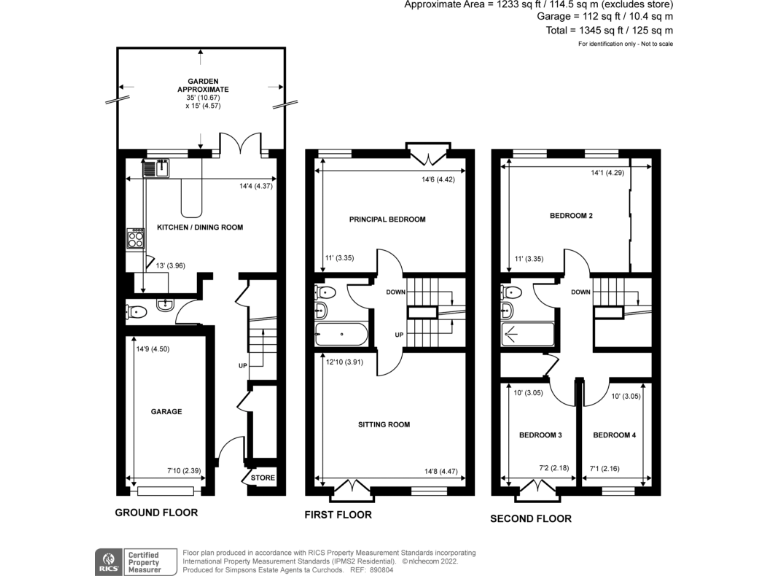
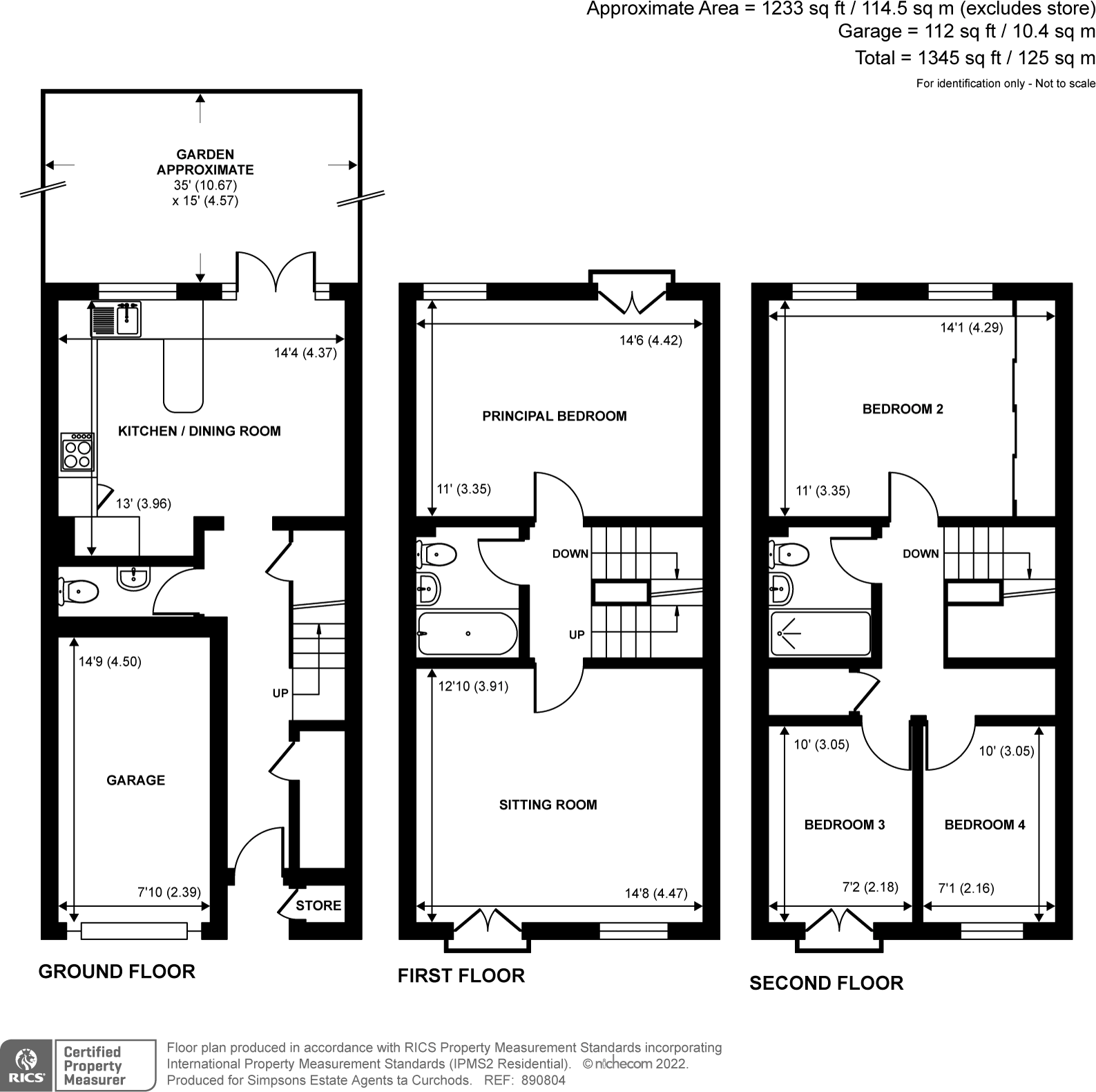
Discover this charming four-bedroom, two-bathroom townhouse nestled just a stone's throw from the expansive Richmond Park, perfect for families and first-time buyers looking to customize their dream space. This property combines the benefits of a quiet suburban lifestyle with the convenience of nearby amenities, including Norbiton station and acclaimed schools such as Parkhill, St. Paul's, and Alexandra Primary, ensuring excellent educational opportunities for your children.
This freehold home, spanning 1,345 square feet over three floors, features versatile reception spaces ideal for both entertaining and family living. Although it needs modernization, this presents a remarkable opportunity to tailor the space to your personal taste, enhancing its value. The private garden offers outdoor space for activities while off-street parking accommodates multiple vehicles—an added convenience in urban settings.
Potential buyers will appreciate the excellent broadband speeds, low crime rates, and the affluent local community—making this property a smart investment. With a great location and the potential for revitalization, don’t miss out on this unique opportunity to create the perfect family home. Act quickly, as properties like this are rare and in high demand!
4 bedroom terraced house for sale in The Farthings, Kingston Upon Thames, KT2 — £695,000 • 4 bed • 2 bath • 1276 ft²
4 bedroom town house for sale in Blenheim Gardens, Kingston Upon Thames, KT2 — £875,000 • 4 bed • 2 bath • 1767 ft²
5 bedroom town house for sale in Crescent Road, Kingston upon Thames, KT2 — £1,000,000 • 5 bed • 3 bath • 1750 ft²
4 bedroom terraced house for sale in Eaton Drive, Kingston Upon Thames, KT2 — £800,000 • 4 bed • 2 bath • 1105 ft²
4 bedroom town house for sale in Vineyard Row, Hampton Wick, Kingston upon Thames KT1 — £949,950 • 4 bed • 2 bath • 1324 ft²
4 bedroom house for sale in Berystede, Kingston Upon Thames, KT2 — £750,000 • 4 bed • 2 bath • 1584 ft²






