PO4 9PF - 2 bedroom terraced house for sale in Tokar Street, Southsea…

View on Property Piper

2 bedroom terraced house for sale in Tokar Street, Southsea, PO4

Summary - 58 Tokar Street PO4 9PF

2 bed 1 bath Terraced

No onward chain — freehold purchase possible quickly
Two double bedrooms with built-in wardrobes
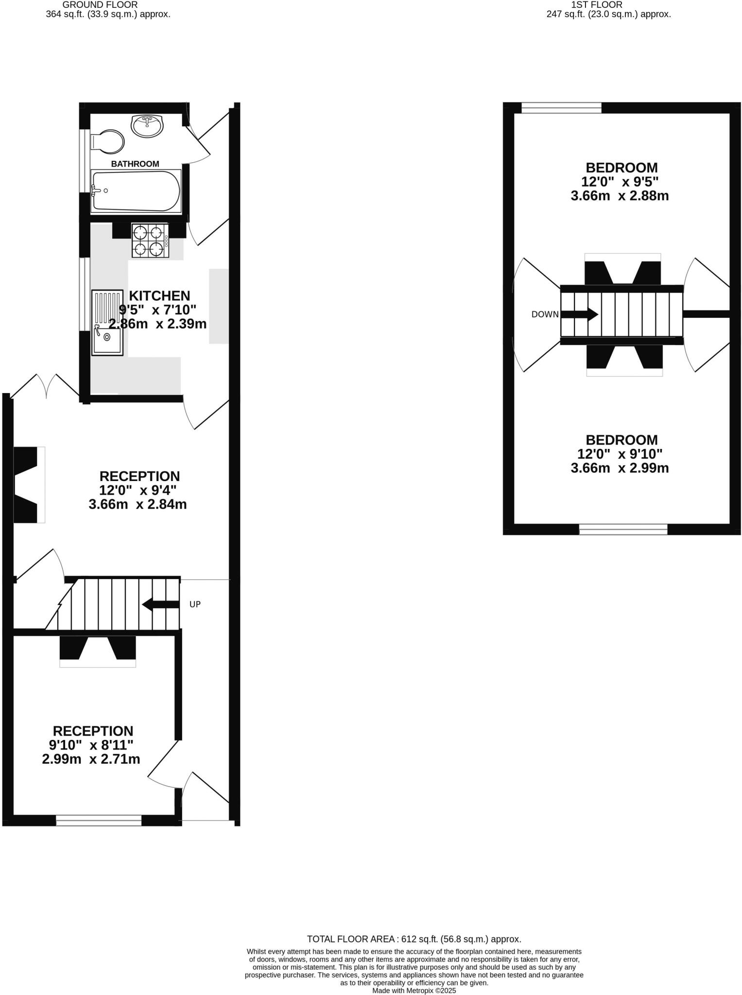
Two separate reception rooms with period fireplace
Private mature rear garden approximately 30ft long
Compact overall size c.612 sq ft, small rooms throughout
Cavity wall construction assumed without insulation — potential upgrades
Double glazing present but installation date unknown
Mains gas boiler and radiators, fast broadband and excellent mobile signal
A compact Victorian mid-terrace with character, positioned within Eastney Village and a short walk from the seafront. The house offers two separate reception rooms, a fitted kitchen and a contemporary bathroom, arranged over two floors to suit a first-time buyer or small family.

Upstairs are two double bedrooms with built-in wardrobes. Period features such as original sash windows, a decorative cast-iron fireplace and hardwood floors give the home character, while a mains-gas boiler and radiator heating provide practical, everyday comfort.

Externally the property benefits from a private, mature rear garden of approximately 30ft — a rare outside space for the area — and a modest frontage typical of Southsea terraces. The freehold, no onward chain position should speed up purchase for the buyer wanting a straightforward move.

Buyers should note the overall internal size is compact (c.612 sq ft) and the plot is small. The house was built circa 1900–1929 with cavity walls that appear to lack insulation (assumed) and the double glazing install date is unknown; further energy-efficiency improvements may be required. Crime and deprivation indicators are average for the area.

Property Details

Brochure Descriptions

Image Descriptions

Floorplan Description

Rooms

Textual Property Features

Detected Visual Features

EPC Details

Nearby Schools

Nearest Bars And Restaurants

,,,,}

Nearest General Shops

,,}

Nearest Grocery shops

,,}

Nearest Supermarkets

,,}

Nearest Religious buildings

,,}

Nearest Medical buildings

,,,}

Nearest Airports

}

Nearest Leisure Facilities

,,,,}

Nearest Tourist attractions

,,}

Nearest Train stations

,,,,}

Nearest Bus stations and stops

,,,,}

Nearest Hotels

,,}

Tags

Local Market Stats

AirBnB Data

Similar Properties

Meta

High Res Images

Compatible Images

Low res Images

Thumbnails

Raw Images

High Res Floorplan Images

Compatible Floorplan Images

Low res Floorplan Images

FloorplanImages Thumbnail

Raw Floorplan Images