Newly renovated three-bed with garden — move-in ready but some damp repair needed.
Three-bedroom semi-detached, newly renovated and move-in ready
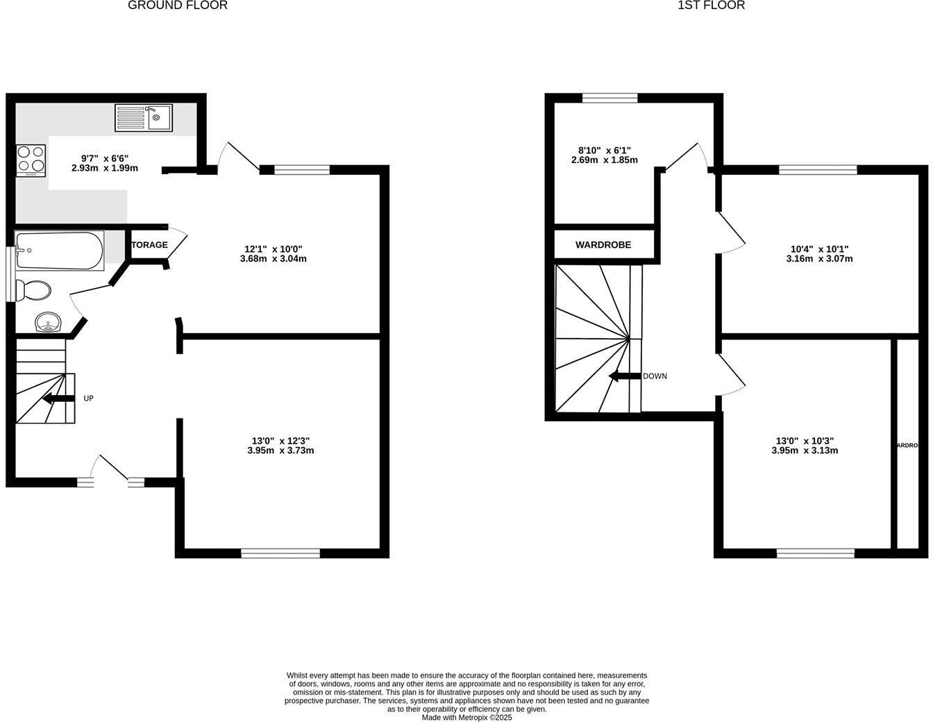
Two spacious reception rooms plus modern fitted kitchen
Private garden, useful outdoor space on a small plot
Two large doubles with built-in wardrobes; one versatile single room
Single family bathroom located on the ground floor only
Small overall size (approx. 633 sq ft) and compact plot
Evidence of ceiling water damage and mould in a bedroom — repair needed
Freehold, fast broadband and excellent mobile signal; average local crime
A bright, newly renovated three-bedroom semi-detached home set on a small plot in Croydon. The ground floor offers two generous reception rooms and a modern fitted kitchen, creating versatile living and entertaining space for family life. The house feels airy throughout and is presented in move-in ready condition.
Upstairs has two large double bedrooms with built-in wardrobes and a versatile large single that works well as a child’s room or home office. The single family bathroom is on the ground floor. Outside, a private garden provides useful outdoor space for children or relaxed evenings.
Practical strengths include freehold tenure, fast broadband and excellent mobile signal, plus a location close to schools and transport. Notable issues: overall internal area is compact (about 633 sq ft) and the plot is small; one bedroom shows evidence of ceiling water damage and mould that will need repair and damp investigation. Buyers preferring larger rooms or gardens should note these limits.
3 bedroom semi-detached house for sale in Shaxton Crescent, New Addington, Croydon, CR0 — £450,000 • 3 bed • 2 bath • 1045 ft²
3 bedroom semi-detached house for sale in Crest Road, South Croydon, CR2 — £650,000 • 3 bed • 1 bath • 1109 ft²
3 bedroom semi-detached house for sale in Willoughby Avenue, Croydon, CR0 — £525,000 • 3 bed • 1 bath • 820 ft²
3 bedroom semi-detached house for sale in Hartley Road, Croydon, CR0 — £450,000 • 3 bed • 1 bath • 1460 ft²
3 bedroom semi-detached house for sale in Dering Road, Croydon, CR0 — £500,000 • 3 bed • 2 bath • 818 ft²
3 bedroom semi-detached house for sale in Gloucester Road, Croydon, CR0 — £425,000 • 3 bed • 1 bath • 1178 ft²














































































