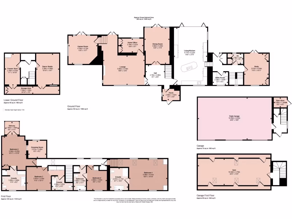
Spacious 1711 farmhouse with triple garage, gym and extensive gardens.
Four bedrooms with three en-suites and Jack & Jill family bathroom
Extremely large total area — about 3,472 sq ft across multiple levels
Basement level includes dance studio and three adaptable rooms
Triple garage with electric doors and gym above (potential annex)
Very large landscaped plot with countryside and Bradgate Park views
Underfloor heating to ground floor and basement; energy rating C
Chain free sale; mains gas heating and double glazing (install date unknown)
Council Tax Band G — relatively high ongoing costs; broadband average
Townhead Farm House is a substantial, characterful four-bedroom farmhouse combining original 1711 features with contemporary extensions. The property offers exceptionally large and flexible accommodation across multiple levels, including a magnificent open-plan living/dining kitchen, separate reception rooms, and a usable basement with a dance studio and storage. A triple garage with electric doors and a first-floor gym (potential annex) add practical value for families or buyers needing space and workspace.
Set on a very large landscaped plot with views towards open countryside and Bradgate Park, the house provides privacy and generous outdoor space for children and pets. The ground floor and basement benefit from underfloor heating; the property overall has mains gas central heating and double glazing. Energy rating C is reasonable for a home of this age, and the home is offered chain free for a straightforward purchase.
Notable drawbacks are factual: the house sits in Council Tax Band G, so running costs are relatively high, and broadband provision is only average for remote working. The home is a period property with later sympathetic extensions, so buyers should expect some ongoing maintenance and periodic conservation-style upkeep to preserve original features. Any buyer wanting full modern performance should budget for updates to secondary elements (for example, unknown double-glazing install date).
This is a distinct country residence suited to a family seeking space, character and versatility — or to an owner-occupier keen on a high-quality period home with substantial ancillary buildings. Internal inspection is recommended to appreciate the scale, flexibility and countryside setting.
4 bedroom detached house for sale in Warren Hills Road, Abbots Oak, Leicestershire, LE67 — £1,499,999 • 4 bed • 4 bath • 3942 ft²
5 bedroom detached house for sale in Linford Farm, Newtown Linford,, LE6 — £1,295,000 • 5 bed • 3 bath • 2908 ft²
4 bedroom semi-detached house for sale in Main Street, Newtown Linford, Leicester, LE6 — £750,000 • 4 bed • 3 bath • 2751 ft²
4 bedroom house for sale in Mill Road, Thurcaston, Leicestershire, LE7 — £685,000 • 4 bed • 2 bath • 1948 ft²
4 bedroom detached house for sale in Grey Crescent, Newtown Linford, LE6 — £795,000 • 4 bed • 3 bath • 2067 ft²
4 bedroom detached house for sale in Warren Hills Road, Abbots Oak, Leicestershire, LE67 — £1,595,000 • 4 bed • 5 bath • 3450 ft²






































































































































































































