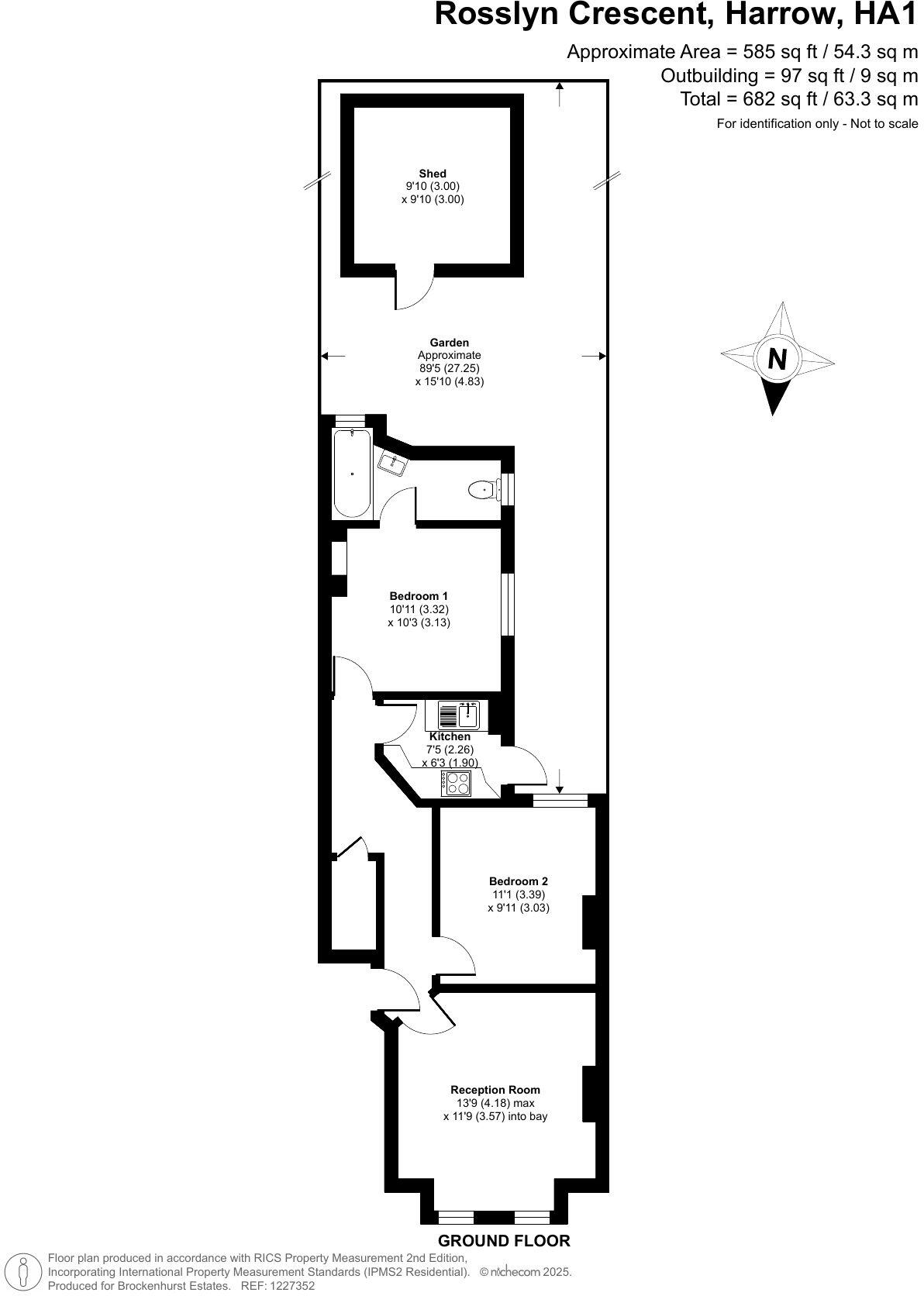
**Standout Features:**
- 2 double bedrooms in a ground floor maisonette
- Own garden for outdoor enjoyment
- Share of freehold ownership
- Convenient location: walking distance to Harrow-on-the-Hill and Harrow & Wealdstone Stations
- Close to the vibrant town center and various amenities
- Council Tax Band: C
**Potential Downsides:**
- Small overall size (585 sq ft)
- High local crime rate and area deprivation concerns
- Exterior of the property may need cleaning
- Interior requires decorating and maintenance improvements
Nestled within Rosslyn Crescent, this charming ground floor maisonette is an ideal starter home or investment opportunity. With two spacious double bedrooms and the exclusive benefit of your own garden, this property offers comfort and a touch of greenery in an urban setting. Boasting a share of freehold, it provides long-term ownership potential that can appeal to discerning buyers.
The maisonette is aptly located just a short stroll away from Harrow-on-the-Hill's Metropolitan Line and the Bakerloo Line at Harrow & Wealdstone, ensuring swift commuting options. Additional convenience comes from the nearby town center, rich with shops, restaurants, and essential services.
While the maisonette's smaller footprint appeals to minimalist lifestyles, note that the property needs some cosmetic enhancement to make it shine. The high ceilings and charming Victorian features await your personal touch. Don't miss out on this exceptional opportunity to own a slice of Harrow; properties like this do not stay on the market long!
2 bedroom flat for sale in Welldon Crescent, Harrow, HA1 — £400,000 • 2 bed • 1 bath • 595 ft²
2 bedroom flat for sale in Rosslyn Crescent, Harrow, HA1 — £450,000 • 2 bed • 1 bath • 946 ft²
2 bedroom maisonette for sale in Eastcote Lane, South Harrow, HA2 8BW, HA2 — £325,000 • 2 bed • 1 bath • 600 ft²
2 bedroom maisonette for sale in Radnor Road, Harrow, HA1 — £425,000 • 2 bed • 1 bath • 600 ft²
2 bedroom flat for sale in Headstone Road, Harrow, HA1 — £385,000 • 2 bed • 1 bath • 672 ft²
2 bedroom maisonette for sale in Claremont Road, Harrow, HA3 — £350,000 • 2 bed • 1 bath • 800 ft²














































