Renovated two-bed Victorian semi near high street — chain free and ready to move into.
Two double bedrooms, both of average size
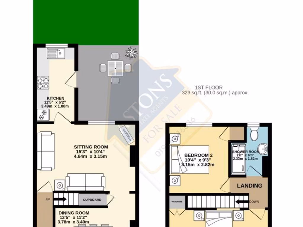
Step into a well-presented Victorian semi on Caldecote Street, recently refreshed for immediate occupation. The house has a refitted kitchen and shower room, two double bedrooms and separate reception rooms arranged over two floors — a straightforward, practical layout for first-time buyers or young families.
The property’s central location places Newport Pagnell’s high street amenities, shops and transport links within easy walking distance. A private rear garden offers low-maintenance outdoor space, while the small front area and compact plot keep upkeep modest.
Be aware this solid-brick home was built before 1900 and external walls are assumed uninsulated; additional insulation or energy upgrades may be desirable. There is a single bathroom and average room sizes throughout, so buyers seeking larger living areas or multiple bathrooms should note the limits.
Offered freehold and chain-free, the house is presented in very good decorative order following recent works. An internal inspection is recommended to assess room proportions and any improvement scope for comfort or energy efficiency.
2 bedroom terraced house for sale in Bury Avenue, Newport Pagnell, MK16 — £290,000 • 2 bed • 2 bath • 736 ft²
2 bedroom semi-detached house for sale in Paggs Court, Silver Street, Newport Pagnell, MK16 — £235,000 • 2 bed • 1 bath • 603 ft²
2 bedroom semi-detached house for sale in Silver Street, Newport Pagnell, MK16 — £230,000 • 2 bed • 1 bath • 528 ft²
2 bedroom terraced house for sale in Mill Street, Newport Pagnell, MK16 — £249,500 • 2 bed • 1 bath • 484 ft²
2 bedroom terraced house for sale in Caldecote Street, Newport Pagnell, Buckinghamshire, MK16 — £275,000 • 2 bed • 2 bath • 725 ft²
2 bedroom terraced house for sale in Priory Street, Newport Pagnell, Buckinghamshire, MK16 — £300,000 • 2 bed • 1 bath • 840 ft²






























































































