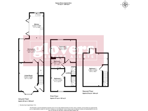
**Standout Features:**
- Semi-detached home built in 2017
- 3 bedrooms and 1 bathroom
- Modern open-plan living/dining space
- Well-equipped kitchen with integrated appliances
- Private back garden with patio and lawn
- Freehold tenure
- Excellent mobile signal and fast broadband speeds
**Concerns:**
- Above-average crime rate in the area
- Local area classification indicates some deprivation
- Council tax band E
Discover a charming 3-bedroom semi-detached home located in the desirable Kings Heath area, perfect for young families and commuters alike! Built in 2017, this property boasts modern design and functionality with an inviting open-plan living and dining area. The fitted kitchen is equipped with essential appliances, and the ground floor features a convenient WC. Upstairs, find two good-sized bedrooms and a well-appointed bathroom, with a spacious double bedroom on the top floor.
Outside, enjoy a lovely private garden, ideal for children or relaxing after a long day. While the property offers comfort and convenience with double glazing and gas central heating, be aware that the area has an above-average crime rate and a council tax band that may be higher than anticipated. With fast broadband and excellent mobile signal, this home offers a unique blend of modern living and community amenities, from good-rated schools to local parks. Don’t miss out on this fantastic opportunity to settle in a growing neighborhood—schedule your viewing today!



















































































































