Large garden, bespoke kitchen and strong family layout near parkland.
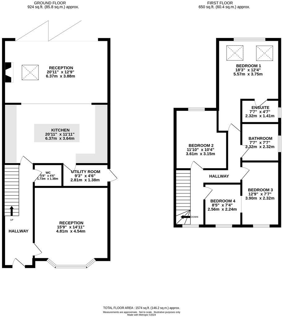
Four double bedrooms including master with en-suite
This four-double-bedroom semi-detached home on Middle Road offers a generous, family-friendly layout and far-reaching front and rear views. The ground floor centres on a bespoke open-plan kitchen with island, adjacent utility and a second reception with bi-fold doors onto a well-maintained garden — ideal for family life and entertaining. The master bedroom benefits from skylights and an en-suite; three further double bedrooms and a stylish family bathroom complete the first floor.
Outside, a large block-paved driveway provides parking for several vehicles and a substantial rear garden features a paved patio, neat lawn, timber summer house and shed. The property sits close to Thorndon Country Park and local schools, with Brentwood town centre and mainline station a short drive away — practical for commuting and weekend country walks.
Important practical points: the right-hand side of the rear garden is on a peppercorn lease and cannot be built on; broadband speeds are reported slow; council tax is above average. The house has double glazing installed before 2002 and cavity walls which are assumed uninsulated, so buyers should consider energy-efficiency upgrades. Overall, this is a well-presented family home with excellent internal space and scope for modest improvement to modernise performance.
4 bedroom link detached house for sale in Common Road, Ingrave, CM13 — £685,000 • 4 bed • 2 bath • 1337 ft²
4 bedroom detached house for sale in ** SIGNATURE HOMES ** Ingrave Road, Brentwood, CM13 — £1,400,000 • 4 bed • 2 bath • 1991 ft²
4 bedroom semi-detached house for sale in The Meadows, Ingrave, CM13 — £600,000 • 4 bed • 2 bath • 1201 ft²
4 bedroom semi-detached house for sale in Brentwood Road, BRENTWOOD, Essex, CM13 — £575,000 • 4 bed • 2 bath • 1415 ft²
5 bedroom detached house for sale in Grange Close, Ingrave, Brentwood, CM13 — £1,000,000 • 5 bed • 1 bath • 1630 ft²
3 bedroom detached house for sale in School Lane, Ingrave, Brentwood, CM13 — £600,000 • 3 bed • 1 bath • 1060 ft²










































































































