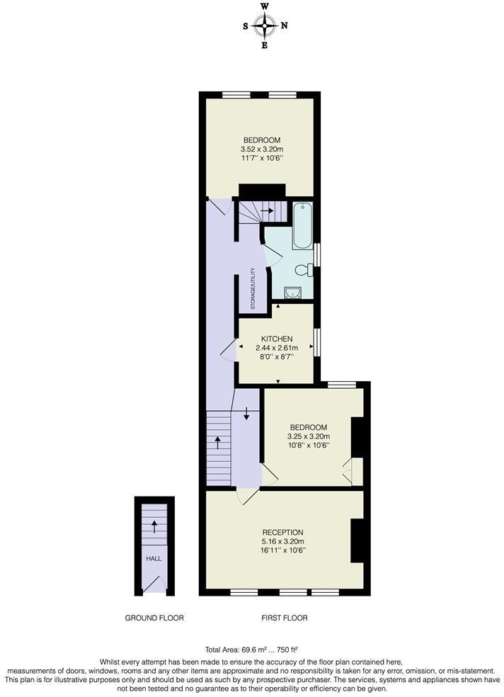
Bright first-floor flat with garden, loft and strong transport links — ideal for first-time buyers.
- Two double bedrooms, well-presented and naturally bright
- Own front door and first-floor layout
- South-west facing sole-use garden plus shared garden
- Loft included in demise, good extra storage/convertible space
- 104-year leasehold term; ground rent £350
- Solid brick walls likely without cavity insulation
- Above-average local crime; area shows deprivation
- Excellent transport links: Lea Bridge and St James Street nearby
A bright, characterful two-bedroom first-floor flat with its own front door and generous outdoor space, ideal for a first-time buyer or investor seeking ready-to-live-in stock in Walthamstow. The apartment sits in a late-Victorian mid-terrace and retains period charm alongside contemporary updates: double glazing, tasteful fittings, built-in storage and a well-equipped kitchen. Large windows give lots of natural light and the loft is included in the demise for extra storage or conversion subject to consent.
Outside, the flat benefits from a south-west facing, sole-use section of garden plus access to a larger shared area — useful for summertime entertaining or growing plants. Transport links are strong: Lea Bridge and St James Street stations are within walking distance, with plentiful bus routes into Walthamstow and central London. Local life is lively, with parks (including Jubilee Park), cafés, independent food and drink options and useful amenities on the doorstep.
Be clear on the practical points: the property is leasehold (104 years remaining) with a ground rent of £350 and a modest council tax band. The building’s solid-brick construction likely lacks cavity insulation, so some thermal upgrades could be considered to improve energy efficiency. Crime levels in the immediate area are above average and the wider neighbourhood shows signs of deprivation; buyers should weigh these factors alongside the strong rental and capital-growth potential of E17. Overall, this is a well-presented, characterful home with outside space and good transport links — a sensible purchase for first-time buyers or a straightforward buy-to-let opportunity.
1 bedroom flat for sale in Markhouse Road, Walthamstow, E17 — £400,000 • 1 bed • 1 bath • 557 ft²
2 bedroom maisonette for sale in Blyth Road, Walthamstow, E17 — £400,000 • 2 bed • 1 bath • 549 ft²
1 bedroom apartment for sale in Sybourn Street, Walthamstow, E17 — £350,000 • 1 bed • 1 bath • 538 ft²
2 bedroom flat for sale in Harris Street, Walthamstow, London, E17 — £500,000 • 2 bed • 1 bath • 768 ft²
2 bedroom flat for sale in Chingford Road, Walthamstow, E17 — £425,000 • 2 bed • 1 bath • 701 ft²
2 bedroom flat for sale in Markhouse Road, Walthamstow, E17 — £400,000 • 2 bed • 2 bath • 818 ft²


















































































