**Key Features:**
- Historic Grade II listed building dating back to 1687
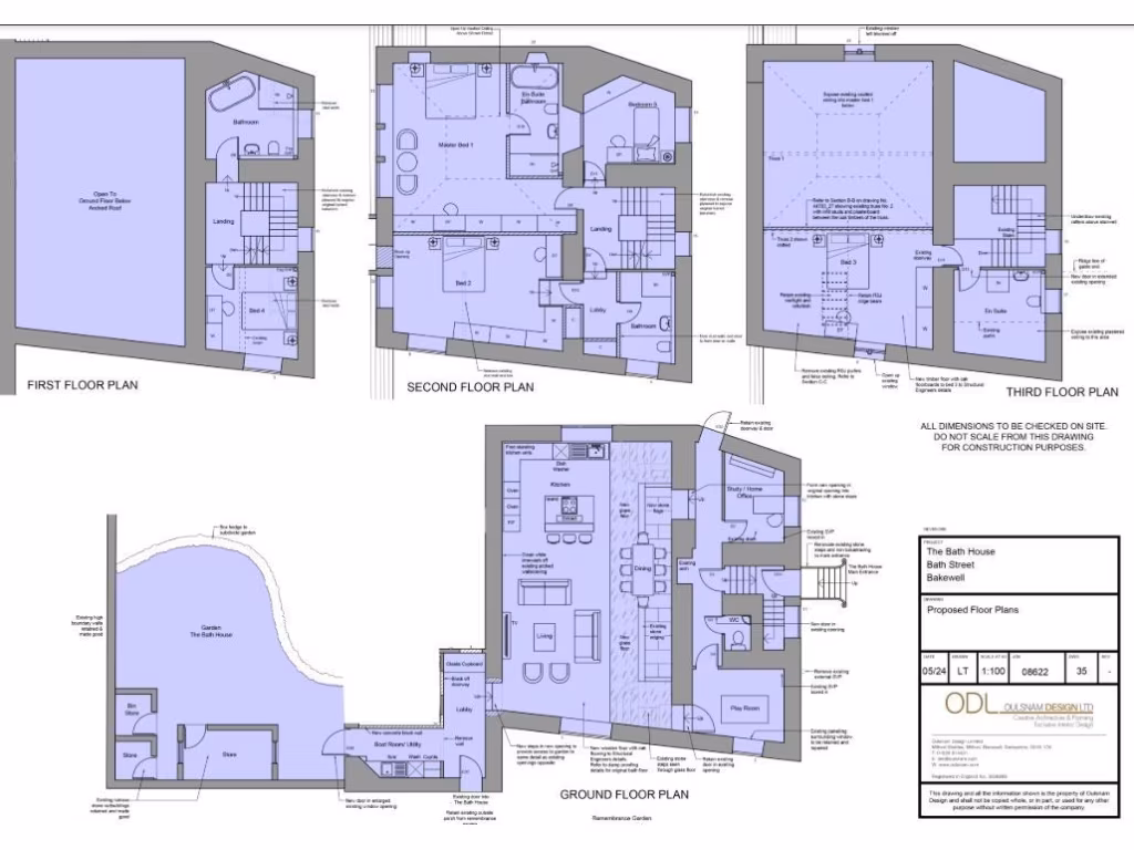
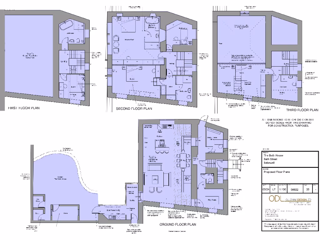
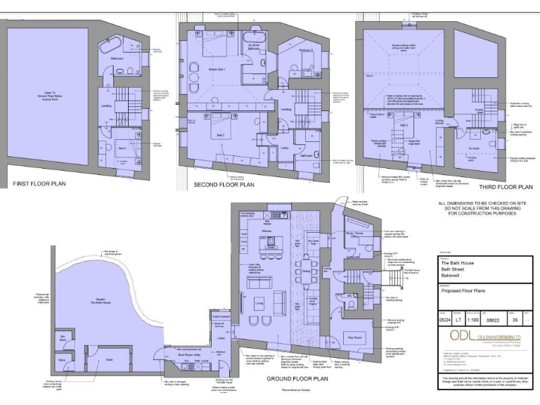
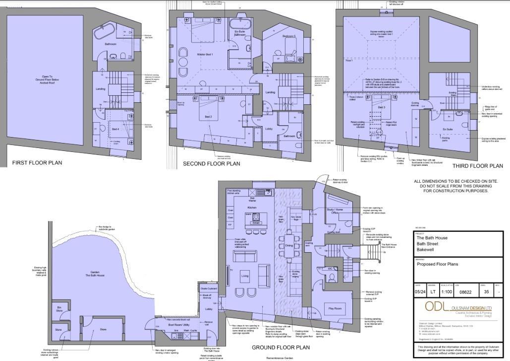
- Proposed conversion for five bedrooms and four bathrooms, totaling approx. 3,185 sq. ft
- Original features, including a vaulted ceiling and arched gritstone details
- Planning and Listed Building consent obtained (October 2023)
- Centrally located near shops and amenities in Bakewell
- Potential for holiday let or family residence with a serene garden space
- Private parking space nearby and additional residents' parking available (subject to council permits)
- No upward chain
**Summary:**
Discover the Bath House, a unique opportunity in the heart of Bakewell, featuring a blend of historical charm and modern potential. This Grade II listed property showcases original Tudor Revival features and has received planning consent for a spacious five-bedroom, four-bathroom conversion. Envision a vibrant living space centered around the beautifully preserved arched gritstone vaulted ceiling while making use of a designated playroom, boot room, and a fantastic garden adorned with stone outbuildings.
Ideally situated adjacent to Bath Gardens and within easy reach of essential shops and amenities, this property promises not only a comfortable living environment but also potential as an income-generating holiday let. The expansive size of the property offers significant renovation potential, inviting you to leave your personal mark. Enjoy the benefits of freehold ownership, no upward chain, and the convenience of nearby off-street parking while embracing the tranquil lifestyle that Bakewell and the Peak District National Park offer. Act quickly—unique properties like this one do not stay on the market for long!
3 bedroom character property for sale in Bath Street, Bakewell, DE45 — £195,000 • 3 bed • 3 bath • 1582 ft²
8 bedroom semi-detached house for sale in Haig House and Bath House, Bath Street, Bakewell, DE45 — £450,000 • 8 bed • 6 bath • 4767 ft²
3 bedroom detached house for sale in Butts Road, Bakewell, DE45 — £450,000 • 3 bed • 2 bath • 1209 ft²
3 bedroom cottage for sale in Rutland Square, Bakewell., DE45 — £750,000 • 3 bed • 2 bath • 1026 ft²
2 bedroom end of terrace house for sale in Chapel Row, off Matlock Street, Bakewell, Derbyshire, DE45 — £260,000 • 2 bed • 2 bath • 789 ft²
2 bedroom terraced house for sale in Buxton Road, Bakewell, DE45 — £299,950 • 2 bed • 1 bath • 856 ft²


























































