Light-filled central flat — ideal for first-time buyers or investors, 0.5 mile to station.
Top-floor one-bedroom with vaulted ceiling and open-plan living
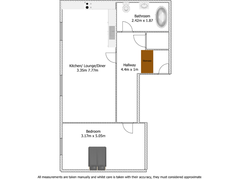
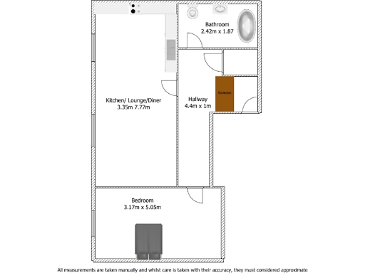
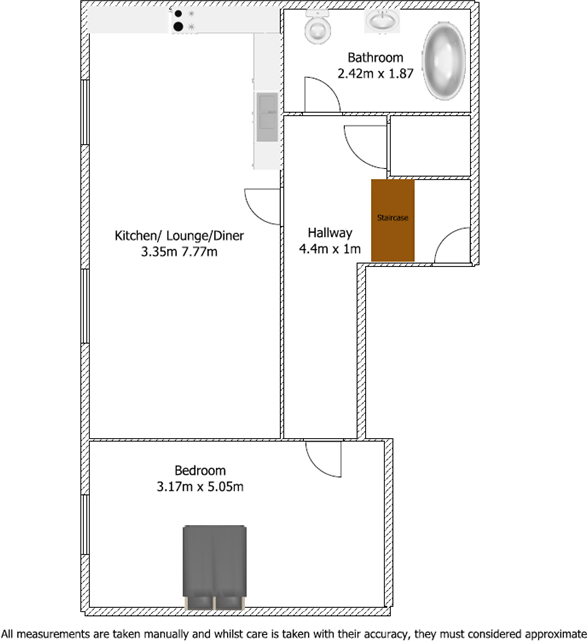
A light-filled top-floor one-bedroom apartment offering 547 sq ft of open-plan living in central Braintree. Vaulted ceilings and tall windows create a loft-like feel in the kitchen/lounge/diner, which includes modern fitted units and integrated appliances. A sizeable double bedroom and well-finished bathroom complete the accommodation, making it move-in ready for first-time buyers or buy-to-let investors.
Practicalities are clear: the flat is leasehold with about 120 years remaining, a service charge around £1,553 pa and ground rent £200 pa. Heating is electric via a boiler and radiators, and there is a large communal storage cupboard on the ground floor plus a shared courtyard and small patio. Cycle storage is provided on-site.
Location is a key draw — the town centre is on the doorstep and the mainline station is approximately 0.5 mile away, useful for commuters. However, the immediate area records very high crime levels, which should be weighed alongside the convenience and potential rental demand.
Overall this apartment suits first-time buyers seeking central, low-maintenance living or investors after a compact, well-presented rental unit. Buyers should note the service charges, electric heating, and local crime statistics when assessing long-term affordability and suitability.
1 bedroom apartment for sale in Fairfield Road, Braintree, CM7 — £130,000 • 1 bed • 1 bath • 469 ft²
1 bedroom flat for sale in Camulus Close, Braintree, CM7 — £160,000 • 1 bed • 1 bath • 461 ft²
1 bedroom apartment for sale in Browns Place, Thomas Way, Braintree, CM7 — £170,000 • 1 bed • 1 bath • 528 ft²
1 bedroom apartment for sale in Fairfield Road, Braintree, CM7 — £130,000 • 1 bed • 1 bath • 385 ft²
1 bedroom apartment for sale in St. Johns Avenue, Braintree, CM7 — £170,000 • 1 bed • 1 bath • 474 ft²
1 bedroom apartment for sale in Fairfield Road, Braintree, CM7 — £125,000 • 1 bed • 1 bath • 485 ft²


















































