Comfortable family home near outstanding River Primary with garage and garden.
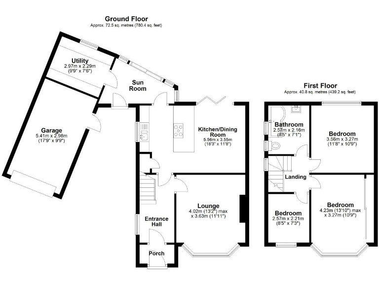
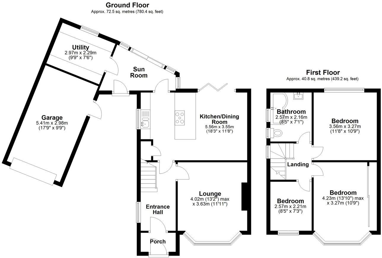
- Three good-sized bedrooms suitable for family use
- Bright lounge and open-plan kitchen/diner with sunroom
- Separate utility room plus integral garage and driveway parking
- Decent private rear garden for children and entertaining
- Double glazing and mains gas central heating throughout
- Walking distance to Outstanding-rated River Primary School
- Single family bathroom for three bedrooms (potential limitation)
- Mid-1930s construction; consider long-term maintenance needs
Set on a pleasant residential street in River, this three-bedroom semi-detached home balances everyday practicality with comfortable family living. The ground floor features a bright lounge, an open-plan kitchen/dining area and a light-filled sunroom that opens onto a decent rear garden — useful for children's play and outdoor meals. A separate utility room and integral garage add storage and everyday convenience.
Upstairs are three well-proportioned bedrooms served by a single modern family bathroom. The house benefits from double glazing, mains gas central heating and a filled-cavity wall construction typical of the 1930s build, offering solid thermal performance and low running costs in this affluent, low-crime neighbourhood. Broadband speeds are fast and mobile signal is excellent — helpful for home working or streaming.
Location is a key draw: the outstanding River Primary School is within walking distance, with secondary and additional primary options close by. There is off-street parking plus a garage and easy access to local amenities and green spaces, making this a practical choice for growing families or those wanting a comfortable move-in-ready home.
Note the property is an average-sized, mid-20th-century house on a decent plot; while presented in good order, buyers should factor in the age of the property when considering long-term maintenance and potential modernisation beyond cosmetic updates. There is one family bathroom for three bedrooms, which may influence household routines or future remodelling plans.
3 bedroom semi-detached house for sale in Crabble Lane, River, Dover, CT17 — £325,000 • 3 bed • 1 bath • 1094 ft²
3 bedroom semi-detached house for sale in Lewisham Road, River, Dover, CT17 — £335,000 • 3 bed • 1 bath • 967 ft²
4 bedroom detached house for sale in Luckhurst Road, River, Dover, CT17 — £475,000 • 4 bed • 2 bath • 1312 ft²
3 bedroom semi-detached house for sale in Lewisham Road, River, Dover, CT17 — £325,000 • 3 bed • 1 bath • 1018 ft²
4 bedroom semi-detached house for sale in The Ridgeway, River, Dover, Kent, CT17 — £375,000 • 4 bed • 1 bath • 936 ft²
3 bedroom semi-detached house for sale in Railway Close, River, Dover, CT16 — £375,000 • 3 bed • 2 bath • 1163 ft²






























































