NW10 9TE - 3 bed franklyn road three bed in Brent Central, NW10 9TE

View on Property Piper

3 bedroom terraced house for sale in Franklyn Road, NW10, Willesden, London, NW10

Summary - WILLESDEN NEW CEMETERY, FRANKLYN ROAD NW10 9TE

3 bed 1 bath Terraced

Large private garden and close to highly rated local schools ideal for growing families.
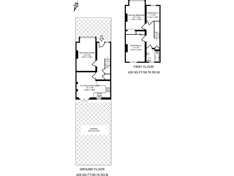
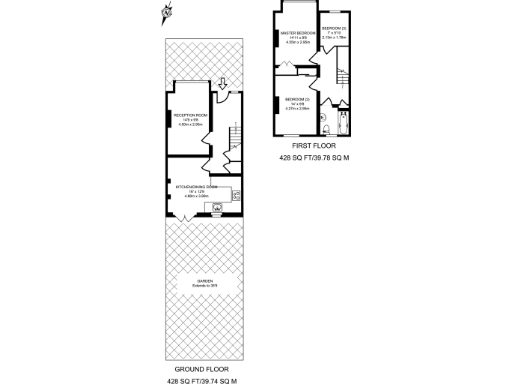
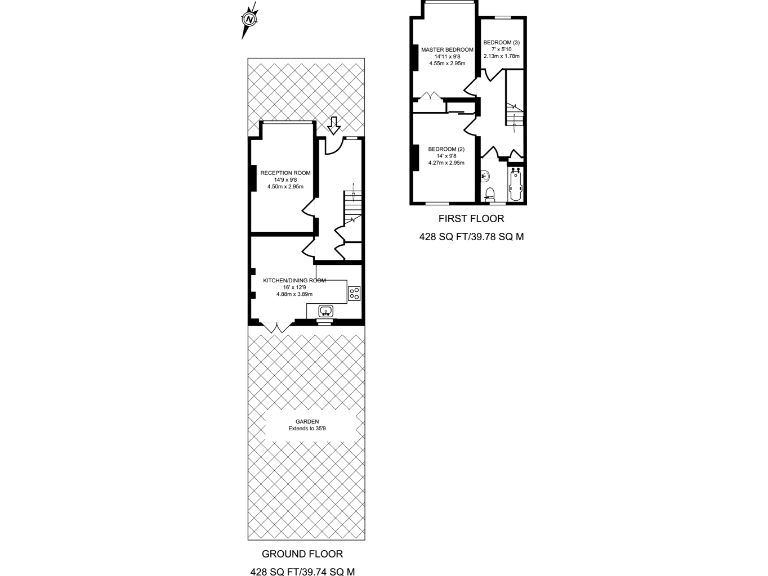
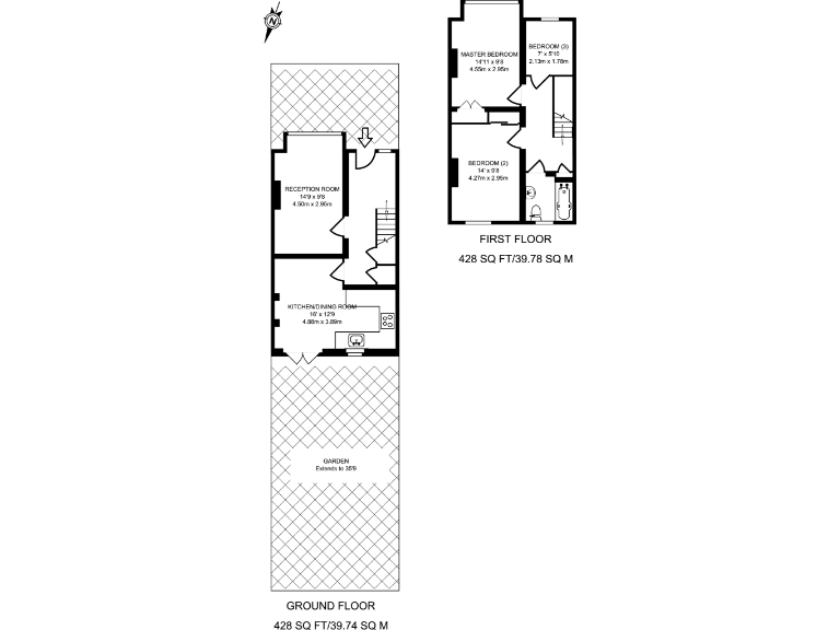
Freehold mid-terrace, approximately 856 sq ft
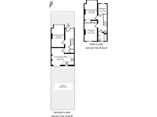
Set on Franklyn Road in Willesden, this mid-terrace, freehold home offers practical three-bedroom living across about 856 sq ft. The ground floor has a modern kitchen and dining area with patio doors leading to a long, private 35' rear garden — a rare outside space for the area. The generous master bedroom includes fitted wardrobes; a single family bathroom serves the house.

The house is best for buyers seeking value and potential: the interior is tidy with contemporary kitchen fittings and pleasant natural light, but the property dates from the 1950s–60s and has solid brick walls with no known cavity insulation. Heating is by mains-gas boiler and radiators; the glazing is double glazed although installation dates are unknown.

Location strengths include proximity to Willesden High Road shops, Roundwood Park and Dollis Hill station, plus a cluster of well-rated primary and secondary schools close by. Practical drawbacks to factor in are the single bathroom, slow broadband speeds, and a local area with higher crime rates and broader area deprivation measures.

Overall this is a straightforward family home with a large garden and decent living space that will suit buyers who want immediate occupation with scope to improve energy performance and modernise further.

Property Details

Image Descriptions

Floorplan Description

Rooms

Textual Property Features

Target Audience

AI Tags

Detected Visual Features

EPC Details

Nearby Schools

Nearest Bars And Restaurants

,,,,}

Nearest General Shops

,,}

Nearest Grocery shops

,,}

Nearest Supermarkets

,,}

Nearest Religious buildings

,,}

Nearest Medical buildings

,,,}

Nearest Airports

,}

Nearest Leisure Facilities

,,,,}

Nearest Tourist attractions

,,}

Nearest Train stations

,,,,}

Nearest Bus stations and stops

,,,,}

Nearest Hotels

,,}

Tags

Local Market Stats

AirBnB Data

Similar Properties

Meta

High Res Images

Compatible Images

Low res Images

Thumbnails

Raw Images

High Res Floorplan Images

Compatible Floorplan Images

Low res Floorplan Images

FloorplanImages Thumbnail

Raw Floorplan Images