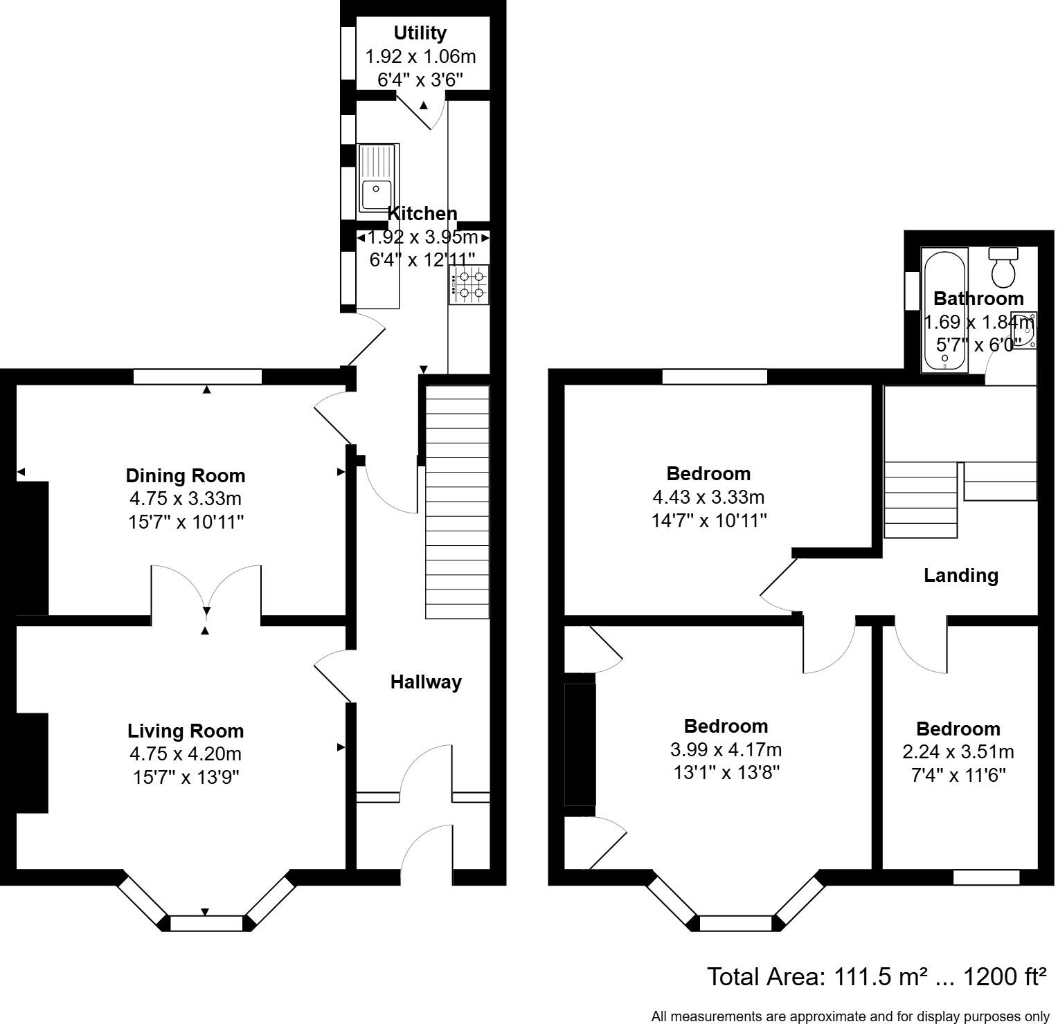
Spacious three-bedroom terraced home with parking and conversion potential.
Victorian mid-terrace with original bay window and cornicing
This Victorian mid-terrace offers spacious, character-filled accommodation across two floors with flexible layout potential. High ceilings, a bay-windowed living room and period cornicing retain original charm while a modern upstairs bathroom provides contemporary convenience. The property currently has three bedrooms with the option to convert the front reception into a fourth bedroom — useful for growing families or buyers seeking rental income.
Practical positives include off-street parking to the rear, a large rear yard and mains gas central heating with boiler and radiators. The house is freehold and of average overall size (approximately 1,200 sq ft), making it straightforward to own and manage. An EPC rating of D and double glazing are in place; the cavity walls were built without insulation (assumed), so further energy improvements are possible to reduce running costs.
Buyers should note material local and property considerations: the local area is classified as deprived with above-average crime levels, and the plot is small. The property has only one bathroom and council tax band information is inconsistent in the particulars (band A stated in some notes, band B in others) — buyers should confirm the correct band and the freehold status with a legal professional. Overall this is a practical family home with period appeal and clear scope for modernization and improvement.
3 bedroom terraced house for sale in Brunton Terrace, Millfield, Sunderland, SR4 — £110,000 • 3 bed • 1 bath • 1127 ft²
4 bedroom terraced house for sale in The Westlands, High Barnes, Sunderland, SR4 — £250,000 • 4 bed • 1 bath • 1775 ft²
2 bedroom terraced house for sale in Ingleby Terrace, Sunderland, Tyne and Wear, SR4 — £140,000 • 2 bed • 1 bath • 1151 ft²
3 bedroom terraced house for sale in Cleveland Road, High Barnes, Sunderland, SR4 — £160,000 • 3 bed • 1 bath • 1190 ft²
2 bedroom terraced house for sale in Beachville Street, Sunderland SR4 — £125,000 • 2 bed • 1 bath • 915 ft²
4 bedroom terraced house for sale in Beechwood Terrace, Thornhill, SR2 — £245,000 • 4 bed • 1 bath • 1144 ft²






















































































