**Standout Features:**
- Beautifully presented Victorian semi-detached property
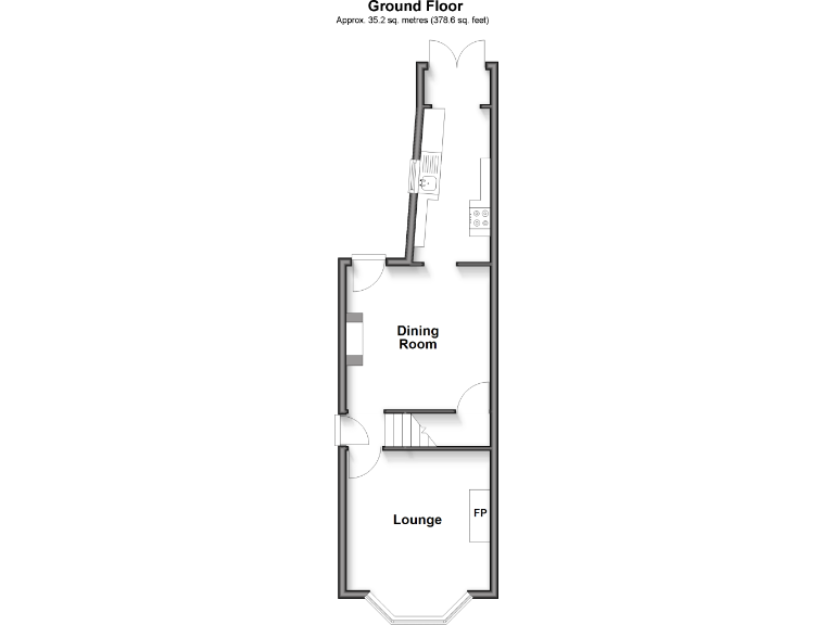
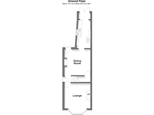
- Modern extended kitchen with integrated appliances
- Charming rear garden
- Potential for parking with necessary planning
- Short walking distance to High Street, station, and top-rated schools
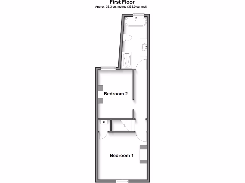
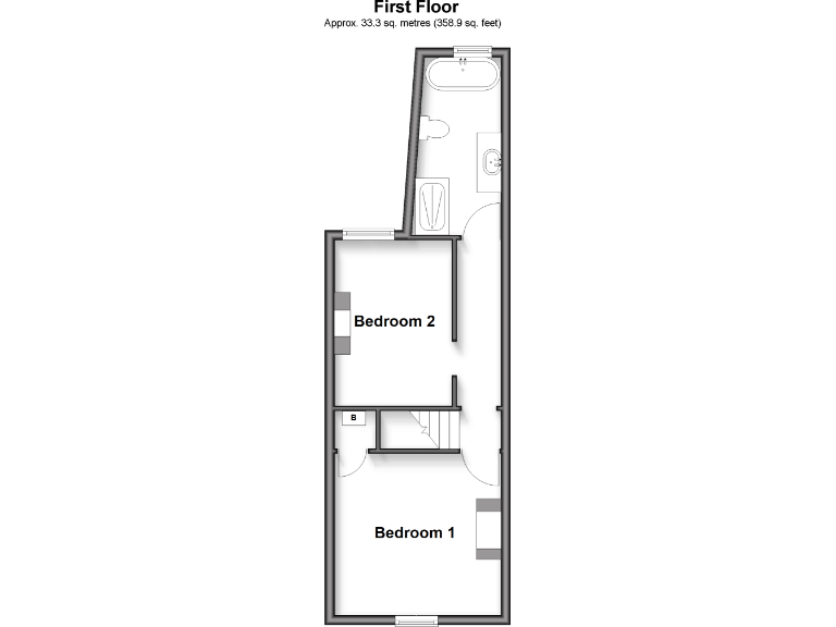
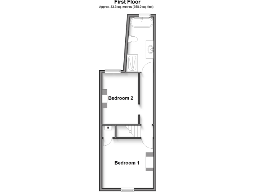
- 566 sq ft living space with unique character features
- Freehold tenure
**Concise Summary:**
Discover this beautifully presented Victorian semi-detached house in the desirable South Tonbridge area, perfectly blending classic charm with contemporary living. This cozy 2-bedroom property boasts an extended kitchen with integrated appliances, a charming garden, and the potential to add parking—subject to planning approval, enhancing its appeal for future value.
Located just a short stroll from the High Street and train station, this home is in the catchment area for multiple highly-rated schools, making it an ideal choice for families. While this property exudes character, it is important to note that it has listed status, which brings specific considerations for renovations or extensions. With an affordable council tax and fast broadband speeds, this home combines comfort with convenience.
Don’t miss the opportunity to own a piece of Victorian charm in a vibrant community—properties like this are in high demand and won’t last long on the market!
2 bedroom semi-detached house for sale in St. Mary's Road, Tonbridge, Kent, TN9 — £400,000 • 2 bed • 1 bath • 537 ft²
2 bedroom terraced house for sale in Baltic Road, Tonbridge, Kent, TN9 — £349,000 • 2 bed • 1 bath • 668 ft²
2 bedroom semi-detached house for sale in Somerhill Road, Tonbridge, Kent, TN9 — £325,000 • 2 bed • 1 bath • 636 ft²
2 bedroom end of terrace house for sale in Baltic Road, Tonbridge, TN9 — £335,000 • 2 bed • 1 bath
3 bedroom terraced house for sale in Priory Road, Tonbridge, Kent, TN9 — £350,000 • 3 bed • 1 bath • 808 ft²
2 bedroom semi-detached house for sale in The Drive, Tonbridge, Kent, TN9 — £550,000 • 2 bed • 1 bath • 1093 ft²






































































