Well-presented two-bedroom retirement bungalow in quiet Chipping Norton cul-de-sac, sold with no onward chain..
Two-bedroom single-storey bungalow ideal for retirement living
Quiet cul-de-sac location overlooking communal greens
Good-sized walk-in shower/wetroom, accessible layout
Small paved patio and driveway parking included
Leasehold with 87 years remaining — review before purchase
Sold with no onward chain for a quicker sale
Mains gas central heating; double glazing (install date unknown)
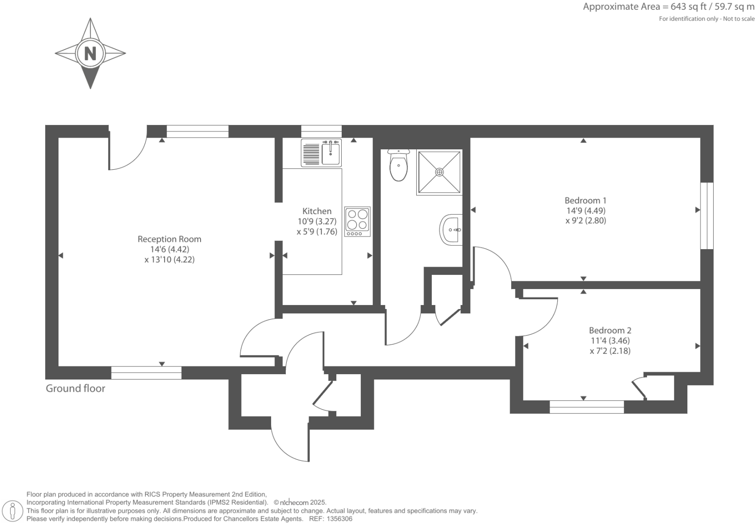
Compact 643 sq ft footprint limits major extension potential
A well-presented two-bedroom terraced bungalow positioned at the end of a quiet cul-de-sac in Chipping Norton. Designed for easy, single-floor living, the home offers a double-aspect lounge, porch and hallway, plus a good-sized walk-in shower/wetroom — practical for retirement living. The property sits adjacent to well-kept communal greens and has a small paved patio and driveway.
This leasehold retirement property is offered with no onward chain, making for a straightforward purchase. Heating is mains gas via a boiler and radiators; windows are double glazed (install date unknown). Broadband speeds are fast and mobile signal is excellent, supporting modern connectivity needs.
Buyers should note the tenure details: a 125-year lease from 24/06/1987 leaves 87 years remaining. The bungalow is average-sized (approximately 643 sq ft) and presented in good order, but its compact footprint limits extensive extension potential. Council tax is described as affordable and the area is very affluent with good local amenities and transport links.
1 bedroom bungalow for sale in Shepard Way, Chipping Norton, OX7 — £215,000 • 1 bed • 1 bath • 574 ft²
2 bedroom flat for sale in West Street, Chipping Norton, OX7 — £115,000 • 2 bed • 1 bath • 520 ft²
2 bedroom detached bungalow for sale in Marlborough Road, Chipping Norton, OX7 — £365,000 • 2 bed • 1 bath • 780 ft²
1 bedroom flat for sale in West Street, Chipping Norton, OX7 — £99,950 • 1 bed • 1 bath • 649 ft²
3 bedroom apartment for sale in Shepard Way, Chipping Norton, Oxfordshire, OX7 — £285,000 • 3 bed • 2 bath • 986 ft²
1 bedroom semi-detached bungalow for sale in Chipping Norton, Oxfordshire, OX7 — £335,000 • 1 bed • 1 bath • 803 ft²


















































































