Quiet corner plot with woodland views and modern family conveniences.
Chain-free four-bedroom detached house on corner plot
Open-plan kitchen/diner ideal for family living and entertaining
Master bedroom with ensuite; three further bedrooms
Detached garage, driveway parking and EV charging point
Pleasant woodland views and semi-rural feel, short walks to countryside
No flood risk; mains gas central heating via boiler and radiators
Council tax band above average — factor ongoing running costs
Local schools mixed: some primaries require improvement, secondaries rated Good
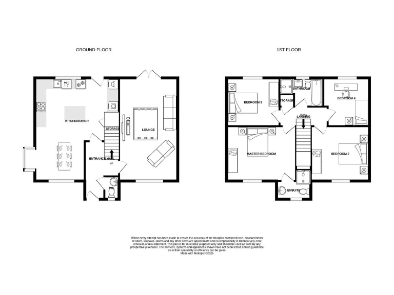
Discover a thoughtfully maintained four-bedroom detached home on a corner plot with pleasant woodland views and a semi-rural feel. The property is chain-free and set on a decent-sized plot, offering a garage, driveway parking and an EV charging point — practical for modern family life and commuters. The home measures around 1,260 sq ft and offers a straightforward layout across two storeys.
The ground floor features a welcoming hallway, a handy WC, a lounge and an open-plan kitchen/diner that suits everyday family use and informal entertaining. Upstairs there are four bedrooms, including a master with an ensuite, plus a family bathroom. Heating is by gas boiler and radiators and there is no recorded flood risk for the area.
Location is a key strength: quiet cul-de-sac position with nearby woodland, easy access to local shops and leisure amenities, and routes into Congleton, Macclesfield and Manchester. School provision is mixed locally — several nearby secondaries are rated Good, while two local primaries require improvement — so families should check individual school preferences and catchment details.
Practical considerations: the house is average-sized for a family home and has been well cared for, but council tax is above average. This is a ready-to-move-into property with scope for updating if you want to personalise finishes or reconfigure spaces over time.
4 bedroom detached house for sale in Forge Wood Close, Congleton, CW12 — £490,000 • 4 bed • 2 bath • 1497 ft²
4 bedroom detached house for sale in Larch Place, Somerford, Congleton, CW12 — £335,000 • 4 bed • 3 bath
4 bedroom town house for sale in Forge Lane, Congleton, CW12 — £325,000 • 4 bed • 2 bath • 1113 ft²
4 bedroom detached house for sale in Whittaker Close, Congleton, CW12 — £435,000 • 4 bed • 3 bath • 1500 ft²
4 bedroom detached house for sale in Lomas Way, Congleton, CW12 — £360,000 • 4 bed • 2 bath • 945 ft²
4 bedroom detached house for sale in Shire Avenue, Congleton, CW12 — £430,000 • 4 bed • 2 bath • 1271 ft²






































































































