**Standout Features:**
- Impressive Victorian detached home built in 1860
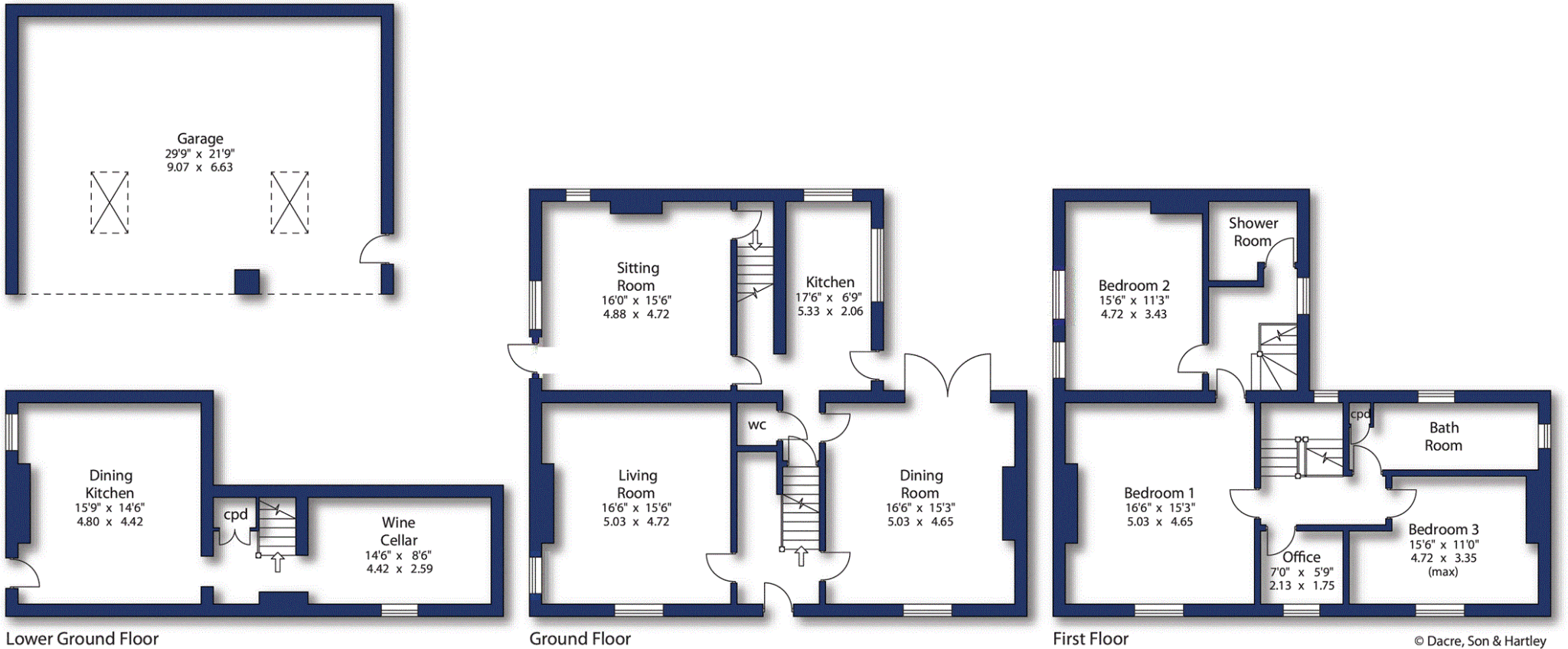
- Generous layout with three floors and nine rooms (3 double bedrooms, 2 kitchens)
- Two staircases, four spacious reception rooms, and a large wine cellar
- Substantial plot with mature gardens for privacy
- Large detached garage with development potential (annex or home gym)
- Electric and manual access gates with ample off-street parking
- Council Tax Band E, freehold tenure, chain free
- Fast broadband and excellent mobile signal
**Summary Description:**
This expansive Victorian detached home, nestled within a generous and secluded plot, blends classic charm with modern potential, making it an exceptional choice for families and investors alike. With around 2,406 sq ft of thoughtfully arranged living space across three floors, you'll find ample room to grow and customize your ideal home. The ground floor features large reception rooms, a well-equipped kitchen, and a convenient WC, while the lower floor boasts a spacious dining kitchen and an appealing wine cellar, perfect for entertaining or conversion into additional living space.
Retaining many original period features, the property is a blank canvas just waiting for a touch of modernization, allowing you to make it truly your own. The outdoor space, complete with a terraced garden and mature landscaping, promotes both relaxation and recreation, while the sizable garage presents myriad possibilities for development. With its prime location in a popular residential area and good local schools nearby, this home offers a unique opportunity for comfortable living with future potential. Don’t wait too long; properties like this, with spaciousness and charm, rarely stay on the market!
3 bedroom detached house for sale in Timothy Lane, Upper Batley, WF17 — £400,000 • 3 bed • 1 bath • 1526 ft²
4 bedroom semi-detached house for sale in Edge Road, Dewsbury, West Yorkshire, WF12 — £650,000 • 4 bed • 2 bath • 2485 ft²
5 bedroom detached house for sale in Brighton House, Oakwell Avenue, WF17 — £595,000 • 5 bed • 3 bath • 2689 ft²
5 bedroom detached house for sale in The Old Vicarage, Howroyd Lane, Whitley, Dewsbury, West Yorkshire, WF12 — £1,350,000 • 5 bed • 3 bath • 5102 ft²
4 bedroom semi-detached house for sale in Flash Lane, Mirfield, WF14 0PJ, WF14 — £350,000 • 4 bed • 2 bath • 2163 ft²
3 bedroom detached house for sale in Leeds Road, Birstall, WF17 — £279,950 • 3 bed • 2 bath • 1034 ft²














































































































































