Period charm near station and park, ready for personalisation.
Bay-windowed Edwardian facade with decorative fireplace and high ceilings
Four bedrooms across a traditional two-storey layout, flexible living space
Short walk to Ramsgate station, regular buses, and Ellington Park
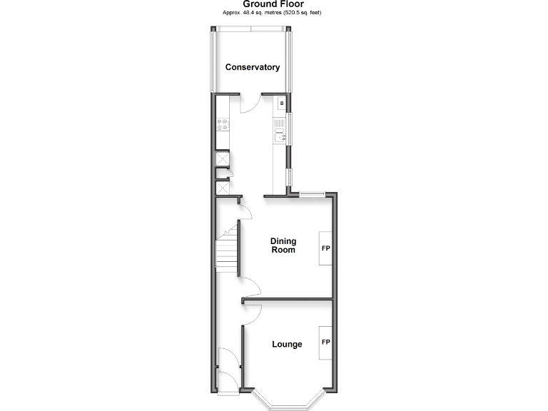
Modern shower room; kitchen and conservatory present
Small overall size (~902 sq ft) may limit family living space
Solid brick walls assumed with no cavity insulation noted
Single bathroom only; consider adding facilities for larger households
Area shows higher crime and local deprivation; factor into decision
This Edwardian end-terrace delivers period character and practical family space across four bedrooms. High ceilings, bay windows and a decorative fireplace give strong curb appeal and a traditional layout that works well for everyday family living. The property is freehold and arranged over well-proportioned rooms including a conservatory and both front and rear gardens.
Practical transport and local amenities are a major draw: a short walk to Ramsgate station, frequent bus routes, and the nearby Ellington Park. Several well-regarded primary schools are within easy reach, and fast broadband plus excellent mobile signal support home working or student study.
Buyers should note this is a relatively small home at about 902 sq ft with only one shower room, which will affect larger families. The property is solid-brick construction with no known cavity insulation (assumed), so buyers may want to budget for insulation or energy-efficiency improvements. The area records higher-than-average crime and some local deprivation, which potential purchasers should consider alongside the transport and school benefits.
Overall, this property offers immediate move-in potential with scope to improve energy performance and add modern comforts. It suits families or professionals seeking period detail, good links to transport, and the opportunity to personalise a traditional terrace.
4 bedroom semi-detached house for sale in Ellington Road, Ramsgate, Kent, CT11 — £425,000 • 4 bed • 2 bath • 1091 ft²
4 bedroom end of terrace house for sale in St. Lukes Road, Ramsgate, Kent, CT11 — £290,000 • 4 bed • 1 bath • 1134 ft²
2 bedroom terraced house for sale in Boundary Road, Ramsgate, Kent, CT11 — £200,000 • 2 bed • 1 bath • 894 ft²
3 bedroom terraced house for sale in Newlands Road, Ramsgate, Kent, CT12 — £270,000 • 3 bed • 2 bath • 915 ft²
4 bedroom semi-detached house for sale in Park Road, Ramsgate, CT11 7QP, CT11 — £400,000 • 4 bed • 2 bath • 1248 ft²
4 bedroom terraced house for sale in Percy Road, Ramsgate, Kent, CT11 — £280,000 • 4 bed • 1 bath • 724 ft²






















































































