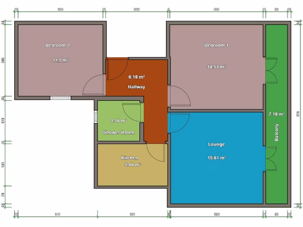
**Standout Features:**
- Recently renovated 2-bedroom first floor flat
- Historic Victorian architecture with original period details
- Spacious living room with high ceilings and ornate fireplace
- Access to a full-width balcony from the living room and main bedroom
- Prime location near Dover’s iconic landmarks and transport options
- Share of freehold ownership for added security
**Potential Concerns:**
- High local crime rate
- Limited outdoor space
- Simple kitchen and bathroom that may require additional updating
- Mains gas heating with no insulation noted, which could affect energy efficiency
Experience the charm of this beautifully renovated 2-bedroom flat, located in a classic Victorian building along the bustling London Road in Dover. Enjoy generous spaces adorned with high ceilings and period features, including an inviting lounge that opens to a full-width balcony, perfect for relaxing or entertaining. Both bedrooms are well-sized, providing comfortable accommodation for small families or as a cozy rental investment in a rapidly developing area.
Nestled near the majestic White Cliffs of Dover and conveniently close to excellent transport links—including high-speed rail to London—this property is ideally positioned for commuters and families. While the local area faces challenges such as a higher crime rate and some maintenance needs, the excellent school options and vibrant community atmosphere make it an opportunity not to be missed. Take advantage of the unique blend of history, modern convenience, and potential future upgrades in a property that will not linger on the market. Don’t wait to make this gem your own!
2 bedroom flat for sale in 7 Stuart Court, Priory Gate Road, Dover, CT17 — £160,000 • 2 bed • 1 bath • 591 ft²
1 bedroom flat for sale in London Road, Dover, CT17 — £120,000 • 1 bed • 1 bath • 613 ft²
1 bedroom flat for sale in Castle Street, Dover, Kent, CT16 — £100,000 • 1 bed • 1 bath • 518 ft²
1 bedroom maisonette for sale in Balfour Road, Dover, CT16 — £90,000 • 1 bed • 1 bath • 467 ft²
3 bedroom semi-detached house for sale in Folkestone Road, Dover, Kent, CT17 — £300,000 • 3 bed • 1 bath • 1285 ft²
2 bedroom terraced house for sale in Victoria Street, Dover, CT17 — £170,000 • 2 bed • 1 bath • 673 ft²














































































