**Standout Features:**
- Spacious detached house with three double bedrooms
- Expansive garden and wrap-around garden space
- Excellent location near Broadstairs station and top-rated schools
- Freehold property with ample parking and a large driveway
- Potential for kitchen and bathroom modernization
- Double glazed windows and gas central heating
**Concerns:**
- Kitchen and bathrooms require renovations
- Built in the 1980s, some design elements are dated
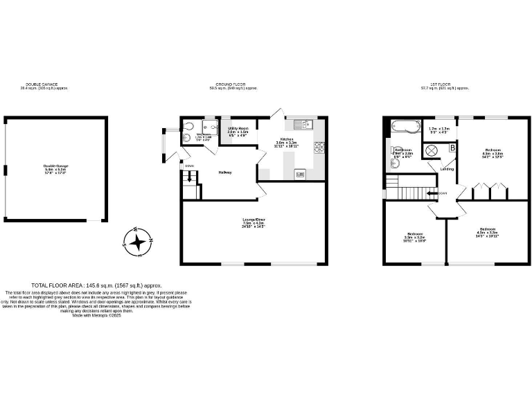
Discover this rarely available three-bedroom detached home nestled in a highly desirable area of Broadstairs. Boasting a generous 1567 sq ft of living space, the property offers ample accommodation with a large living room, a utility room, and the potential to create an en-suite bathroom from available space in the master bedroom. Perfect for families or investors, the property features a well-maintained wrap-around garden, a drive that accommodates multiple vehicles, and a double garage for added convenience.
This home enjoys excellent access to Broadstairs station, making it ideal for commuters, while its proximity to outstanding local schools adds to its allure. While the interiors reflect a bygone era, the 1980s kitchen and bathrooms present a blank canvas for modernization, allowing new owners to invest in their vision for comfort and style. With a highly attractive asking price of £475,000, seize the chance to transform this spacious home into your dream space in an affluent community—opportunities like this do not last long!
 3 bedroom detached house for sale in Repton Close, Broadstairs, CT10 2UZ, CT10 — £550,000 • 3 bed • 2 bath • 1744 ft²
 3 bedroom detached house for sale in Repton Close, Broadstairs, CT10 2UZ, CT10 — £550,000 • 3 bed • 2 bath • 1744 ft² 3 bedroom detached house for sale in St. Peters Court, Broadstairs, Kent, CT10 — £525,000 • 3 bed • 2 bath • 1350 ft²
 3 bedroom detached house for sale in St. Peters Court, Broadstairs, Kent, CT10 — £525,000 • 3 bed • 2 bath • 1350 ft² 3 bedroom detached house for sale in Vale Road, Broadstairs, Kent, CT10 — £500,000 • 3 bed • 1 bath • 1387 ft²
 3 bedroom detached house for sale in Vale Road, Broadstairs, Kent, CT10 — £500,000 • 3 bed • 1 bath • 1387 ft² 3 bedroom semi-detached house for sale in Weatherly Drive, Broadstairs, CT10 — £395,000 • 3 bed • 1 bath • 1052 ft²
 3 bedroom semi-detached house for sale in Weatherly Drive, Broadstairs, CT10 — £395,000 • 3 bed • 1 bath • 1052 ft² 3 bedroom semi-detached house for sale in Lindenthorpe Road, Broadstairs, CT10 — £425,000 • 3 bed • 1 bath • 1445 ft²
 3 bedroom semi-detached house for sale in Lindenthorpe Road, Broadstairs, CT10 — £425,000 • 3 bed • 1 bath • 1445 ft² 3 bedroom detached house for sale in Grange Road, Broadstairs, CT10 3EP, CT10 — £550,000 • 3 bed • 1 bath • 1607 ft²
 3 bedroom detached house for sale in Grange Road, Broadstairs, CT10 3EP, CT10 — £550,000 • 3 bed • 1 bath • 1607 ft²










































































