Auction lot for buyers ready to refurbish and add value.
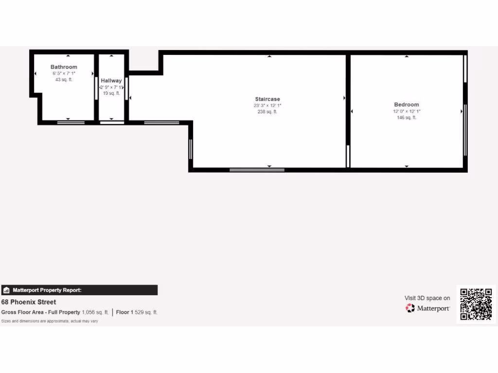
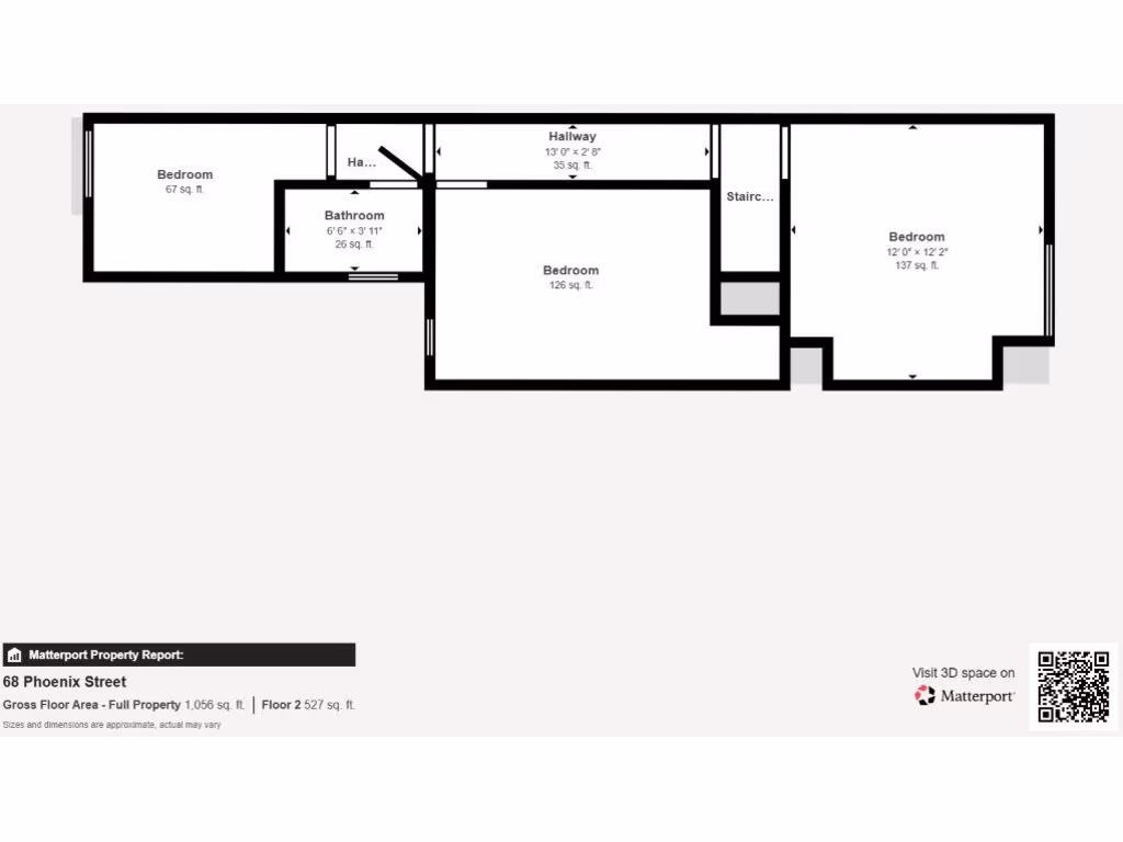
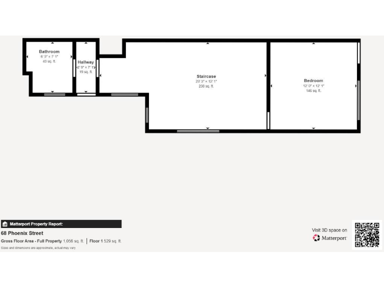
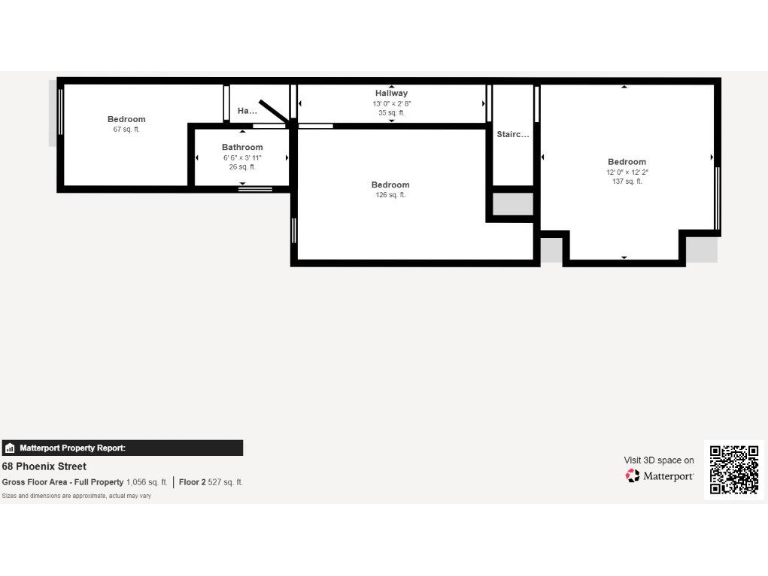
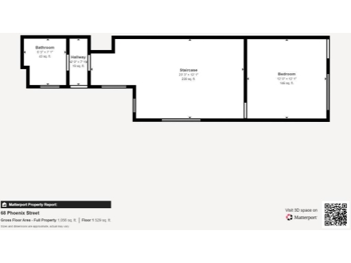
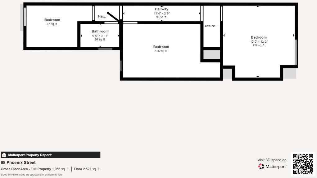
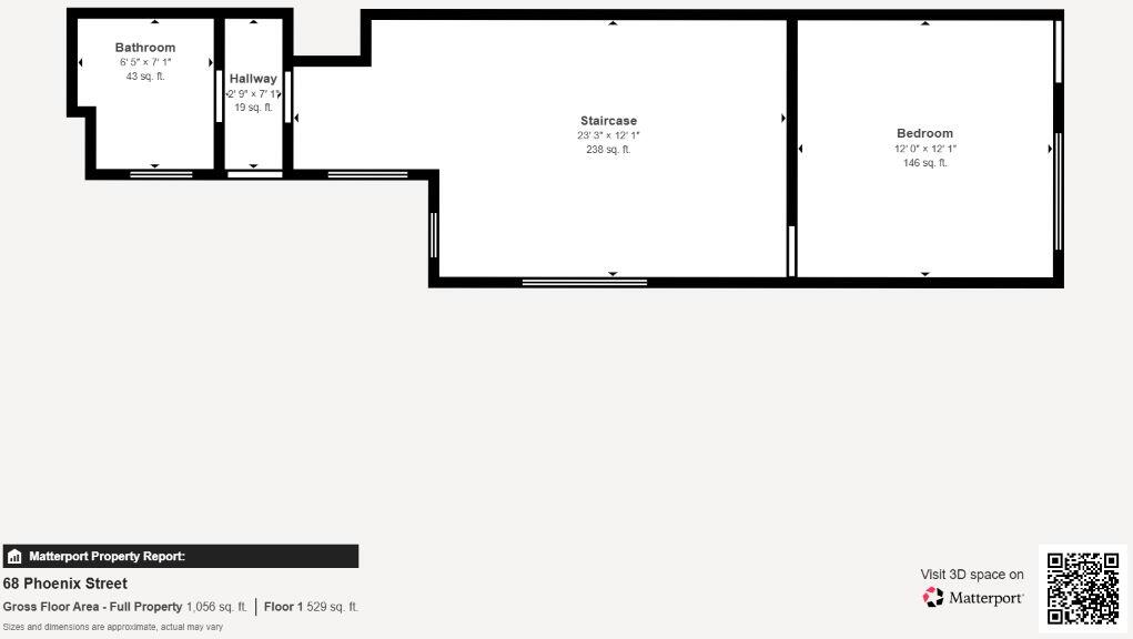
Freehold three-bedroom vacant property, approx. 529 sq ft
68 Phoenix Street is a vacant freehold three-bedroom home offered at public auction — a straightforward purchase for an investor or buyer comfortable with renovation. The property sits on a small plot with no front garden and benefits from double glazing, mains gas central heating and an Energy Performance Rating of C. Its compact footprint (approx. 529 sq ft) and rear yard reflect an entry-level urban property with potential for cosmetic and layout improvements.
The house requires full modernisation throughout; fixtures, finishes and general decoration will need replacing. The area is identified as deprived with higher-than-average crime rates, and the property sits flush to the pavement with on-street parking only. Buyers should plan for immediate refurbishment costs and check the legal pack for any additional sale conditions and fees associated with the auction purchase.
For investors, the lot may suit short-term refurbishment and re-let or longer-term improvement, and the plot offers modest scope for development subject to planning. For an owner-occupier seeking a low-price entry into Sutton-in-Ashfield, this is a project property that will need time, budget and tolerance for an urban, close-quarters setting.
Important sale details: the property will be sold at auction on 10 December 2025 with vacant possession on completion. Pre-auction offers will not be considered; buyers should note the compulsory administration fee and that exchange is unconditional on the fall of the hammer. Viewings are scheduled in late November and early December — consult the auction organiser and read the legal pack before bidding.
2 bedroom end of terrace house for sale in Lime Street, SUTTON-IN-ASHFIELD, Nottinghamshire, NG17 — £90,000 • 2 bed • 1 bath • 789 ft²
3 bedroom detached house for sale in Coburn Street, Sutton-in-Ashfield, Nottinghamshire, NG17 — £150,000 • 3 bed • 1 bath • 905 ft²
3 bedroom semi-detached house for sale in Hardwick Lane, Sutton-in-Ashfield, NG17 — £199,995 • 3 bed • 1 bath • 1060 ft²
2 bedroom terraced house for sale in Dalestorth Street, Sutton-in-Ashfield, Nottinghamshire, NG17 — £100,000 • 2 bed • 1 bath • 801 ft²
2 bedroom terraced house for sale in St. Michaels Street, Sutton-In-Ashfield, NG17 — £110,000 • 2 bed • 1 bath • 990 ft²
2 bedroom mixed use property for sale in 52 Mansfield Road, Skegby, Sutton-in-Ashfield, Nottinghamshire, NG17 3EQ, NG17 — £70,000 • 2 bed • 1 bath • 1056 ft²






































































































