### Standout Features:
- **Detached Farmhouse** in a rural village setting
- **Spacious Gardens** encompassing 0.4 acres, ideal for outdoor activities and gardening
- **Versatile Living** with open plan areas, including a dining kitchen, conservatory, and music room
- **Three Bedrooms** plus additional playroom, providing ample space for families
- **Multiple Outbuildings**, including workshop and laundry room, enhancing functionality
- **Convenient Parking** with off-street space available
- **Chain Free**, allowing for quicker transitions
### Property Overview:
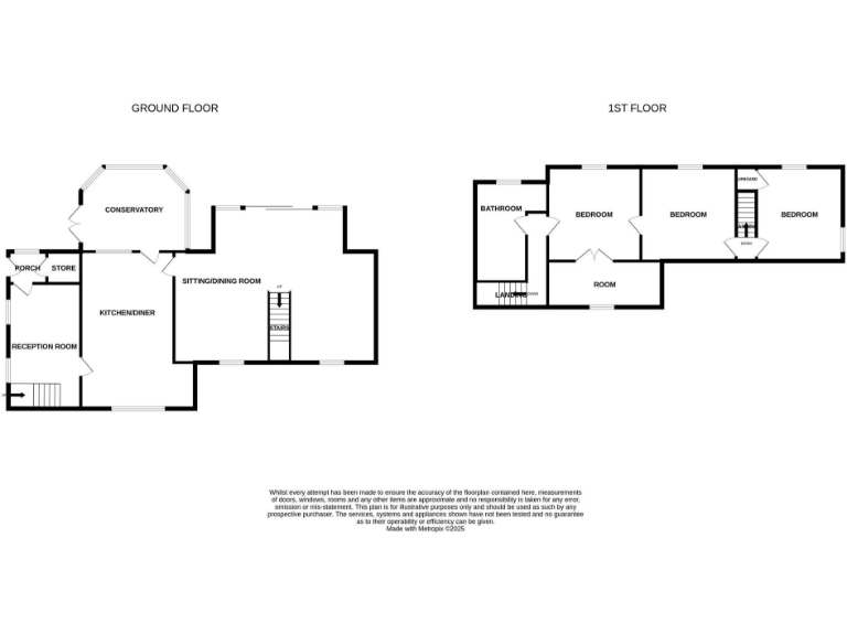
Nestled in the tranquil village of South Cockerington, this charming detached farmhouse epitomizes countryside living with ample space and character. Set on a generous 0.4-acre plot, the property boasts sprawling gardens, perfect for families seeking outdoor enjoyment. Inside, the flexible layout is ideal for modern lifestyles, featuring a welcoming open plan living area that flows into a well-equipped dining kitchen and a delightful conservatory that offers serene views of the mature gardens.
The residence comprises three spacious bedrooms and a versatile playroom, providing a variety of options for family living or creative spaces. Noteworthy is the inclusion of several outbuildings, which offer potential for a home workshop, laundry room, or additional storage, catering to both practicality and hobbies.
Despite its allure, it is important to note that some maintenance may be required for the older structure, so buyers should consider the potential for renovations to further enhance this charming home. Positioned just four miles from the bustling town of Louth, this unique property presents a rare opportunity for those craving comfort, privacy, and a slice of rural life. Don’t miss your chance to explore the endless possibilities this farmhouse has to offer!
4 bedroom farm house for sale in Farlesthorpe, Alford, LN13 — £465,000 • 4 bed • 1 bath • 1475 ft²
4 bedroom detached house for sale in Manby Middlegate, Grimoldby, Louth, LN11 — £400,000 • 4 bed • 2 bath • 2325 ft²
4 bedroom detached house for sale in Stewton, Louth, LN11 — £650,000 • 4 bed • 3 bath • 1970 ft²
3 bedroom detached house for sale in Oxlands Lane, Bratoft, Skegness, PE24 — £290,000 • 3 bed • 1 bath • 993 ft²
2 bedroom detached house for sale in Alford Road, Withern, Alford, LN13 — £425,000 • 2 bed • 1 bath • 2677 ft²
4 bedroom detached house for sale in Gowts Farm Main Road Saltfleet Louth LN11 7SB, LN11 — £685,000 • 4 bed • 2 bath • 5024 ft²














































































































































































