Perfect for growing families close to good schools and town amenities.
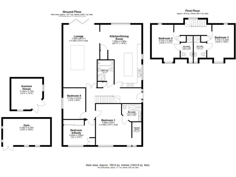
Driveway parking for multiple vehicles
Large landscaped, fully enclosed rear garden
Open-plan bespoke kitchen with integrated appliances
Bright living room with roof lantern and bi-fold doors
Principal suite on ground floor with dressing area and en-suite
Two outbuildings used as summer house and gym (flexible use)
Approx 1,944 sq ft; five bedrooms and four bathrooms
EPC D and council tax listed as expensive (running costs)
This well-presented five-bedroom detached house on Hare Street Road offers generous family accommodation of approximately 1,944 sq ft across two floors. The ground floor features an open-plan bespoke kitchen/dining room and a bright living room with a large roof lantern and bi-fold doors that open onto a landscaped, fully enclosed rear garden — ideal for indoor-outdoor family living and entertaining.
The home includes a principal ground-floor suite with dressing area and en-suite, two further ground-floor bedrooms (one adaptable as a study), plus two large first-floor double bedrooms each with dormer windows and en-suites. There are two reception rooms in total, ample integrated kitchen appliances, and useful integrated storage throughout. Driveway parking accommodates multiple vehicles and there is side access to the rear garden.
Outside the plot is large and landscaped with lawn, decking, decorative stone, mature borders, and two substantial outbuildings currently used as a summer house and gym — giving flexible ancillary space for hobbies, home working, or storage. The property is a short walk from a range of local shops, excellent schools and community amenities in Buntingford, with good road links to the A10 and nearby mainline stations.
Practical points to note: the EPC rating is D and council tax is described as expensive, which are relevant for running costs. Overall this is a roomy, comfortable family home on a generous plot, suited to buyers seeking living space, flexible outbuildings, and proximity to schooling and town facilities.
4 bedroom detached house for sale in Hummerston Close, Buntingford, SG9 — £625,000 • 4 bed • 2 bath • 1653 ft²
5 bedroom detached house for sale in Olvega Drive, Buntingford, SG9 — £700,000 • 5 bed • 4 bath • 1938 ft²
5 bedroom detached house for sale in Olvega Drive, Buntingford, SG9 — £700,000 • 5 bed • 4 bath • 1972 ft²
5 bedroom detached house for sale in Pipkin Drive, Buntingford, SG9 — £740,000 • 5 bed • 3 bath • 1754 ft²
5 bedroom detached house for sale in Olvega Drive, Buntingford, SG9 — £810,000 • 5 bed • 4 bath • 2124 ft²
4 bedroom detached house for sale in Hummerston Close, Buntingford, SG9 — £649,000 • 4 bed • 2 bath • 1355 ft²


































































































