Large plot, double garage and single-floor living close to shops and schools.
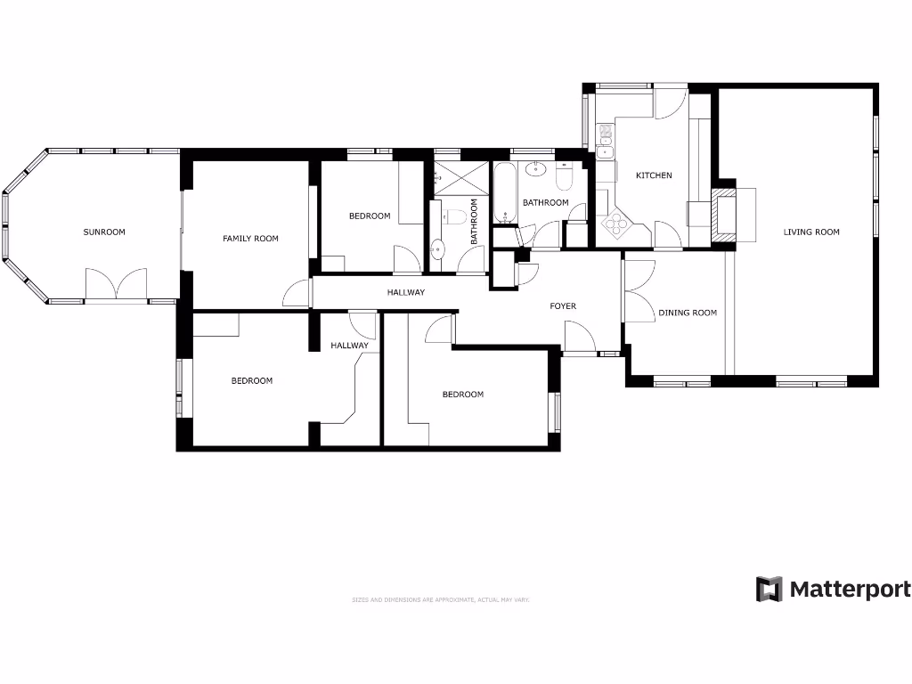
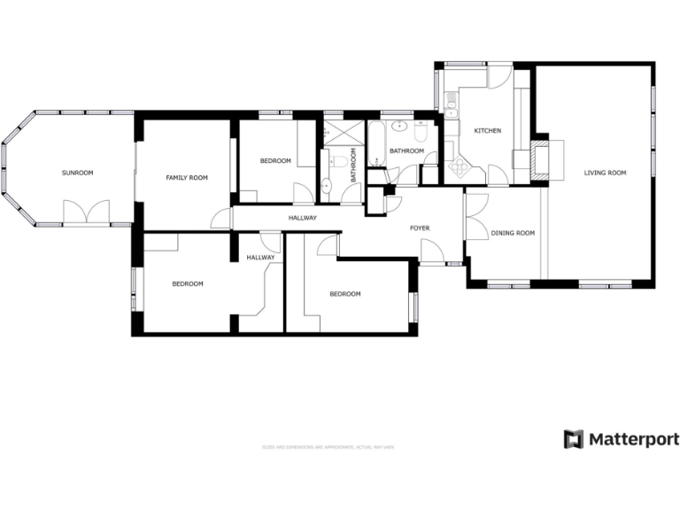
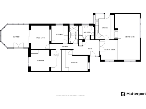
- Spacious single-storey layout with four bedrooms
Set on a large plot in the Little Hill estate, this spacious four-bedroom detached bungalow offers comfortable single-floor living ideal for families or downsizers who value space and accessibility. The L-shaped lounge/diner and adjoining conservatory bring plenty of natural light, while a practical fitted kitchen, separate bathroom and shower room support everyday family life. Off-road parking for several vehicles leads to a double garage with workshop — useful for hobbies or extra storage.
Built mid-20th century and extending to about 1,528 sqft, the house has solid bones and characterful proportions, with generous garden areas to the front, side and rear. Local amenities are within easy reach — supermarkets, regular bus routes into Leicester and several nearby primary and secondary schools (including two rated Good) make this a convenient spot for family routines.
Practical considerations: the property has double glazing installed before 2002 and cavity walls that appear uninsulated, and the EPC is currently a D. Council tax is above average. These factors mean a buyer should expect medium-term improvement costs to raise energy efficiency and comfort. Overall, this is a roomy, well-located home with clear potential for updating to suit modern living.
2 bedroom semi-detached bungalow for sale in Penzance Avenue, Wigston, Leicestershire, LE18 — £250,000 • 2 bed • 1 bath • 698 ft²
2 bedroom bungalow for sale in Britford Avenue, Wigston, Leicestershire, LE18 — £240,000 • 2 bed • 1 bath • 1074 ft²
2 bedroom bungalow for sale in Pentridge Close, Wigston, Leicestershire, LE18 — £220,000 • 2 bed • 1 bath • 682 ft²
4 bedroom detached bungalow for sale in Ivanhoe Road, Wigston, LE18 — £325,000 • 4 bed • 2 bath • 1346 ft²
3 bedroom detached bungalow for sale in Fir Tree Close, Wigston, LE18 — £375,000 • 3 bed • 1 bath • 2003 ft²
2 bedroom detached bungalow for sale in Glebe Close, Wigston, LE18 — £300,000 • 2 bed • 1 bath • 808 ft²






































































































































