Annual gross income £9,960 from two flats and a commercial unit
Freehold mixed-use block: ground-floor café/restaurant plus two flats
Immediate income — long-term tenants currently in place
Price £180,000; attractive for cash buyers and portfolio investors
No private garden or off-street parking; town‑centre frontage only
Property shows age; likely requires internal and external refurbishment
Area is very deprived with very high crime and slow broadband speeds
Buyers’ premium applies on purchase; see Let Property Pack for details
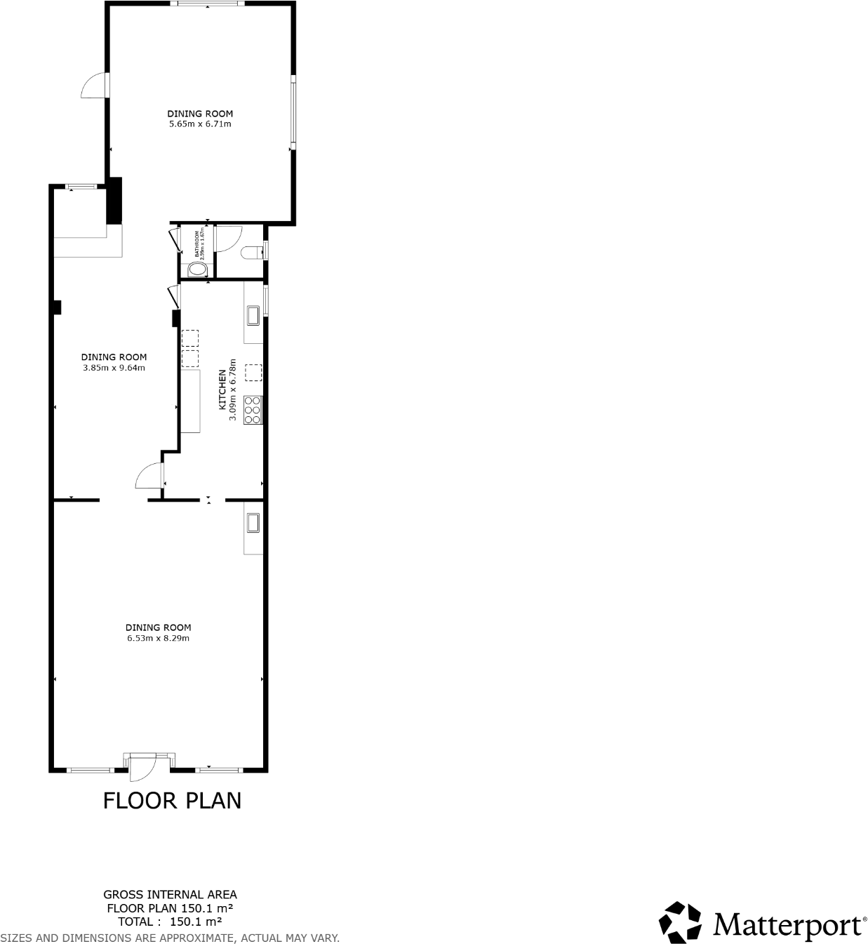
A mixed-use, mid-terraced building on Commercial Street, Tredegar, offered as a freehold portfolio with two flats and a ground-floor commercial unit. The property is currently let and producing a recorded annual gross income of £9,960, presenting a clear buy-to-let opportunity for a cash buyer or investor seeking town-centre retail with upper-floor residential income.
The ground floor operates as a café/restaurant with full-width shopfront and direct pavement access; two upper-floor flats (one 2-bed, one 1-bed) provide steady residential rental. The building footprint is typical for a high-street terrace: compact, with no private garden or off-street parking. Tenants are in situ, giving immediate income but limiting vacant-possession redevelopment options unless agreements change.
The location is urban and very deprived with very high local crime statistics and slow broadband speeds — factors that will influence rental demand and tenant profiles. The façade and interiors show age and are likely to need external and internal refurbishment; investors should budget for upgrade and maintenance works. A buyers’ premium applies on sale; consult the Let Property Pack for detailed tenancy and financial schedules.
High street retail property for sale in Commercial Street, Tredegar, Blaenau Gwent. NP22 3DJ, NP22 — £67,000 • 1 bed • 1 bath • 726 ft²
Shop for sale in Commercial Street, Tredegar, NP22 — £55,000 • 1 bed • 1 bath • 1948 ft²
1 bedroom terraced house for sale in Commercial Street, Tredegar, Blaenau Gwent. NP22 3DJ, NP22 — £67,000 • 1 bed • 1 bath • 726 ft²
2 bedroom mixed use property for sale in 26 A, B, C Castle Street, Tredegar, Gwent, NP22 3DG, NP22 — £129,000 • 2 bed • 1 bath
3 bedroom terraced house for sale in Margaret Street, Abercynon, Mountain Ash, CF45 — £199,950 • 3 bed • 2 bath • 2644 ft²
7 bedroom terraced house for sale in Bridge Street, Troedyrhiw, CF48 — £650,000 • 7 bed • 1 bath


















































































