- Grade II-listed three-storey town house with cellar
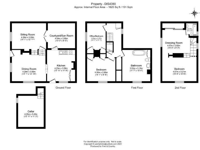
This handsome Grade II-listed red brick town house sits at the heart of Eye, offering generous period rooms across three storeys plus a cellar. The layout is traditional and slightly idiosyncratic, with three reception rooms and a large kitchen/breakfast room featuring granite surfaces — great for family mornings and entertaining. The master bedroom benefits from an en suite bathroom and a dressing room; two further bedrooms and a second bathroom complete the sleeping accommodation.
The property stands out for its strong town-centre presence, forecourt parking and convenient walking distance to shops, cafés and rail links. Its modest outside space is easy to maintain and the garage adds practical storage and parking. At about 1,625 sq ft, the house will appeal to purchasers seeking period character and scope to reconfigure or refresh interiors rather than a brand-new turnkey finish.
Important: the Grade II listing means any external or significant internal alterations will need consent and may complicate refurbishment plans. Services such as broadband and mobile signal are average, council tax is moderate and there is no flood risk. For buyers who value centrality, historic character and period detail — and who are comfortable working within listed-building constraints — this is a rare town-centre opportunity in an affluent, well-served market town.
3 bedroom house for sale in Broad Street, IP23 — £375,000 • 3 bed • 2 bath • 1397 ft²
3 bedroom end of terrace house for sale in Church Street, Eye, IP23 — £550,000 • 3 bed • 1 bath • 1320 ft²
6 bedroom detached house for sale in Lambseth Street, Eye, Suffolk, IP23 — £1,300,000 • 6 bed • 3 bath • 5422 ft²
5 bedroom terraced house for sale in Castle Street, Eye, IP23 — £425,000 • 5 bed • 2 bath • 2421 ft²
5 bedroom detached house for sale in Eye, Suffolk, IP23 — £950,000 • 5 bed • 2 bath • 4506 ft²
4 bedroom end of terrace house for sale in Magdalen Street, Eye, Suffolk, IP23 — £380,000 • 4 bed • 2 bath • 1551 ft²






























































































