**Standout Features:**
- No onward sales chain
- Stunning views of Keynsham Memorial Park and River Chew
- Two private balconies
- Spacious top-floor apartment with natural light
- Allocated secure off-street parking
- Ideal location near amenities, parks, and schools
- Well-maintained with modern double glazing
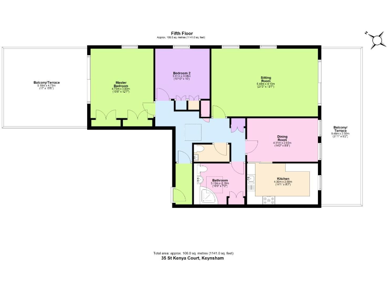
Nestled atop a purpose-built development in vibrant Keynsham, this two-bedroom apartment combines comfort and convenience with stunning views of the River Chew and Keynsham Memorial Park. Enjoy the luxury of two private balconies, perfect for soaking in the picturesque surroundings or entertaining guests. The spacious layout features two reception rooms that bathe in natural light, complemented by modern uPVC double glazing and secure off-street parking—an invaluable asset in this desirable area.
With no onward chain, this property offers a rare opportunity to move in hassle-free and truly make it your own. Located just a short stroll from local amenities, public transport links, and award-winning schools, it’s ideal for families and first-time buyers alike. While the property is in average condition and constructed in the 1970s, it boasts significant potential for personal touches and renovations to enhance your living experience. Act quickly—this unique offering won’t last long!
2 bedroom apartment for sale in Temple Street, Keynsham, Bristol, BS31 — £290,000 • 2 bed • 1 bath • 775 ft²
1 bedroom flat for sale in Riverside View, Keynsham, Bristol, BS31 — £249,500 • 1 bed • 1 bath • 520 ft²
2 bedroom flat for sale in Temple Street, Keynsham, Bristol, BS31 — £225,000 • 2 bed • 1 bath • 721 ft²
1 bedroom flat for sale in Riverside View, Temple Street, Keynsham, BS31 — £220,000 • 1 bed • 1 bath • 465 ft²
2 bedroom flat for sale in Temple Street, Keynsham, Bristol, BS31 — £260,000 • 2 bed • 1 bath • 776 ft²
2 bedroom flat for sale in Temple Street, Keynsham, BS31 — £275,000 • 2 bed • 1 bath • 646 ft²










































































