Ready-to-move family home with sunny garden and garage.
Built 2018 with remainder of 10-year NHBC guarantee
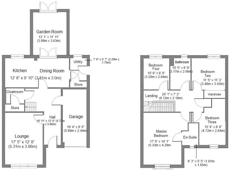
This well-presented, four-bedroom detached house was built in 2018 and retains the remainder of its NHBC guarantee. The ground floor flows from a large hallway into a bright lounge, modern dining kitchen with garden room and a practical utility — ideal for everyday family life. Outside there's an integral garage, block-paved driveway for two cars and a generous south-westerly rear garden with patio for afternoon sun.
Practical extras include an external EV charging point, fast broadband, double glazing and a gas-fired Vaillant boiler. The master bedroom has fitted wardrobes and an en-suite shower; a family bathroom also provides a separate shower cubicle. The property sits on an end plot within the maturing Backworth Park estate with nearby primary schools, metro station and good road links to the A19/A1.
Buyers should note the property falls into Council Tax Band F and local crime levels are average. The wider area classification indicates some industrious hardship, although the immediate neighbourhood is described as comfortable. Overall, this freehold home suits families seeking a modern, low-maintenance house with outdoor space and convenient transport connections.
4 bedroom detached house for sale in Rosebay Close,
Backworth, Newcastle upon Tyne,
NE27 0GG, NE27 — £460,000 • 4 bed • 2 bath • 1596 ft²
4 bedroom detached house for sale in Prosperous Way, Backworth, NE27 — £339,995 • 4 bed • 2 bath • 1054 ft²
4 bedroom detached house for sale in Briardene Way, Backworth Park, NE27 — £425,000 • 4 bed • 3 bath • 1389 ft²
4 bedroom detached house for sale in Stone View,
Holystone, Newcastle Upon Tyne,
NE27 0JB, NE27 — £350,000 • 4 bed • 2 bath • 997 ft²
4 bedroom detached house for sale in Prosperous Way, Backworth, NE27 — £350,000 • 4 bed • 2 bath • 1395 ft²
4 bedroom detached house for sale in Briardene Way, Backworth, Newcastle Upon Tyne, NE27 — £340,000 • 4 bed • 2 bath • 1002 ft²


























































































































































































































































































































































