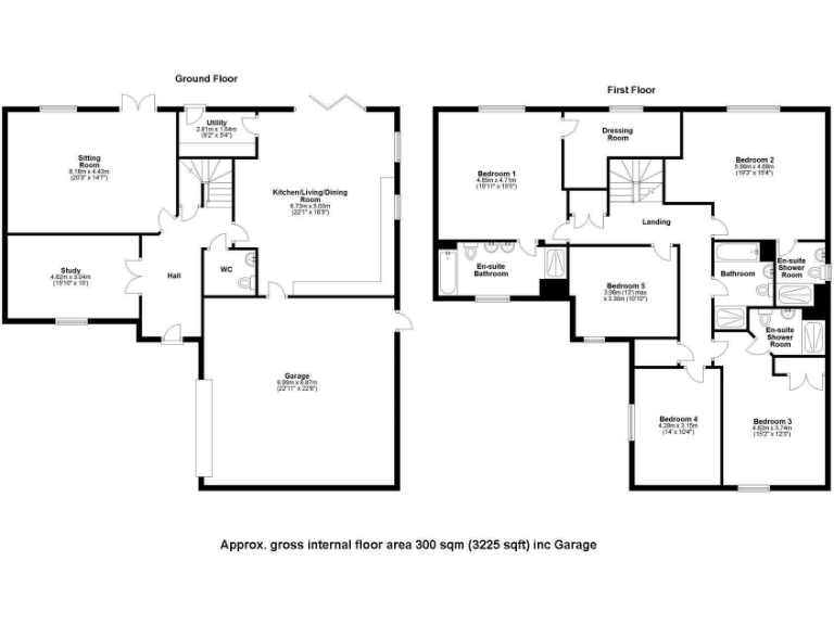
Five doubles, large garden and double garage in a peaceful cul-de-sac.
- Five double bedrooms, three with en suites
- Open-plan kitchen/dining/reception with quartz worktops
- Large rear garden with porcelain patio for entertaining
- Double garage with EV charging point and driveway parking
- Separate sitting room and front-aspect study
- Freehold; total size approx. 3,177 sq ft
- Estate charge £720 per year; council tax quite expensive
- Tucked-away no-through road in affluent, low-crime village
Set on a large plot at the end of a quiet no-through road, this substantial five-bedroom semi offers generous, well-proportioned living across about 3,177 sq ft. The ground floor centres on a contemporary open-plan kitchen/dining/reception with quartz worktops and Bosch appliances, flowing to a porcelain patio and lawned garden — ideal for family life and entertaining. A separate sitting room and a front-aspect study add flexible living and working space.
Upstairs there are five double bedrooms, three with en suites and a fitted walk-in wardrobe off the principal bedroom, plus a family bathroom. Practical features include a utility room, cloakroom, ample built-in storage and a large double garage with EV charging point and internal access. Fast broadband and a very affluent, low-crime village setting make this well-suited to professionals and families seeking peaceful countryside living.
The property is freehold and well maintained, but buyers should note an annual estate charge of £720 and a comparatively high council tax band. Mobile signal is average. Overall this is a spacious, modern family-focused home with strong schooling nearby and scope to personalise internal finishes if desired.
6 bedroom detached house for sale in Bishops Way, Newport, CB11 — £1,250,000 • 6 bed • 4 bath • 2905 ft²
4 bedroom detached house for sale in Gilbey Green, Newport, CB11 — £815,000 • 4 bed • 2 bath • 2120 ft²
4 bedroom detached house for sale in Langley Upper Green, CB11 — £1,425,000 • 4 bed • 4 bath • 3100 ft²
4 bedroom semi-detached house for sale in Joyce Frankland Close, Newport, CB11 — £750,000 • 4 bed • 3 bath • 1692 ft²
5 bedroom detached bungalow for sale in Wicken Bonhunt, Saffron Walden, CB11 — £875,000 • 5 bed • 2 bath • 2628 ft²
5 bedroom detached house for sale in Wicken Road, Wicken Bonhunt, Saffron Walden, CB11 — £995,000 • 5 bed • 4 bath • 1845 ft²






































































































