Modern four-bedroom detached with garage and generous garden near schools and commuter links.
Four bedrooms with principal en‑suite and built‑in storage
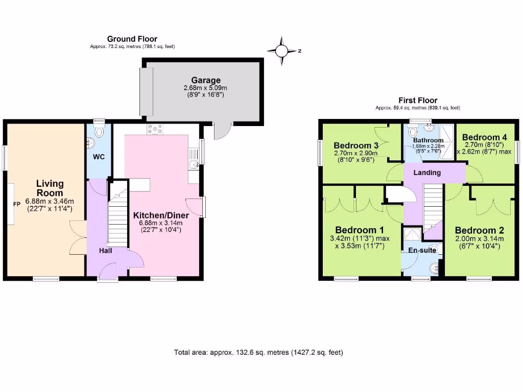
This modern four‑bedroom detached house on a corner plot offers practical family living in sought‑after Rolleston‑on‑Dove. The ground floor centres on a generous living room with fireplace and an open integrated kitchen/diner with breakfast bar — a useful hub for everyday life and entertaining. Neutral decor and good natural light mean the property is ready to move into with minimal immediate work required.
Upstairs provides four bedrooms, the principal of which benefits from an en‑suite, alongside a family bathroom and generous built‑in storage throughout. An integral garage, off‑road parking for two vehicles and a private rear garden with patio, lawn and mature planting add to the day‑to‑day convenience and outdoor space for children or pets.
Practical details: built in the early 2000s and with double glazing and gas central heating, the house sits in a very low‑crime, affluent area with excellent mobile signal and fast broadband. Local amenities, highly regarded primary and secondary schools, countryside walks and good commuter links via the A38 and nearby rail services make this a well‑rounded family location.
Considerations: the property is in Council Tax Band E (above average running cost) and has an EPC rating of C. The overall size is medium/average for a family home — attractive for many buyers but not a large detached estate property.
4 bedroom detached house for sale in Station Road, Rolleston-on-Dove, DE13 — £475,000 • 4 bed • 2 bath • 1103 ft²
4 bedroom detached house for sale in Station Road, Rolleston On Dove, DE13 — £450,000 • 4 bed • 2 bath • 1083 ft²
5 bedroom detached house for sale in Ealand Close Rolleston Manor, DE13 — £637,000 • 5 bed • 3 bath • 2000 ft²
4 bedroom town house for sale in Forest School Street, Rolleston-On-Dove, Burton-On-Trent, DE13 — £285,000 • 4 bed • 2 bath • 1094 ft²
3 bedroom semi-detached house for sale in Beacon Drive, Rolleston-on-Dove, Burton-on-Trent, Staffordshire, DE13 — £220,000 • 3 bed • 1 bath • 894 ft²
4 bedroom detached house for sale in Fernlea Drive, Linton, Swadlincote, DE12 — £375,000 • 4 bed • 2 bath • 1357 ft²


































































































